VIA ROMA
LIMIDO COMASCO (Como)
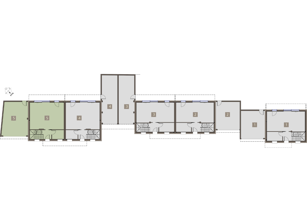
Villetta a schiera composta da ampio soggiorno con angolo cottura, tre camere, due bagni, e giardino di proprietà mq. 69 e annesso box doppio a piano terra. Classe energetica non inferiore ad A3. Prestazione energetica in fase di rilascio.
LIMIDO COMASCO (Como)
Prossima realizzazione in Limido Comasco, territorio prevalentemente pianeggiante e immerso nel verde. Ottimo collegamento grazie alla SP 24 tra Appiano Gentile e Mozzate, vicino all'ingresso autostradale di Lomazzo e di Turate.
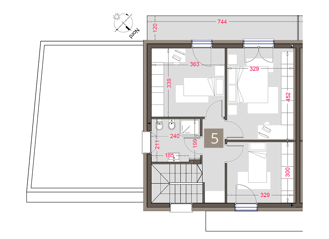
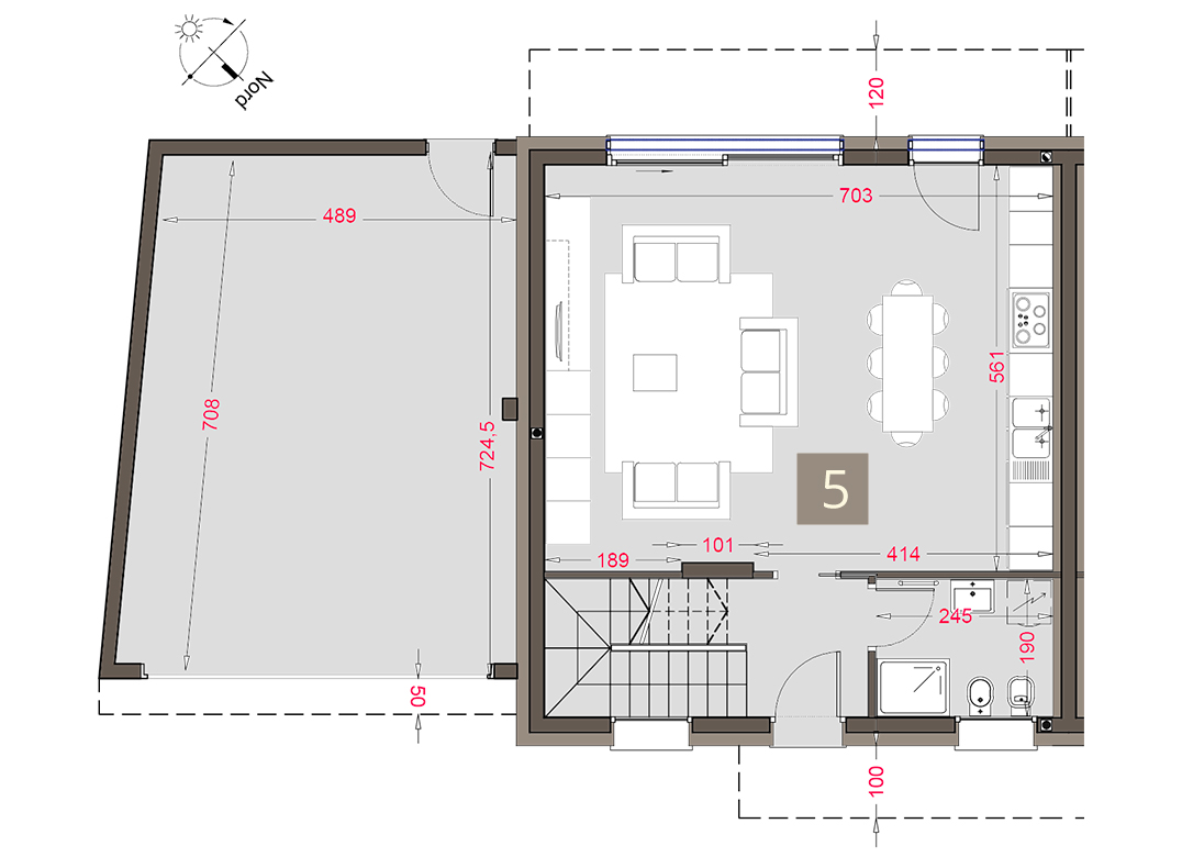
Villetta a schiera composta da ampio soggiorno con angolo cottura, tre camere, due bagni, e giardino di proprietà mq. 161 e box doppio a piano terra. Classe energetica non inferiore ad A3. Prestazione energetica in fase di rilascio.
Villetta a schiera composta da ampio soggiorno con angolo cottura, due camere, due bagni, e giardino di proprietà mq. 71 e annesso box doppio a piano terra. Classe energetica non inferiore ad A3. Prestazione energetica in fase di rilascio.
Villetta a schiera composta da ampio soggiorno con angolo cottura, due camere, due bagni, e giardino di proprietà mq. 40; e annesso box doppio a piano terra. Classe energetica non inferiore ad A3. Prestazione energetica in fase di rilascio.
Villetta a schiera composta da ampio soggiorno con angolo cottura, tre camere, due bagni, e giardino di proprietà mq. 41 e annesso box doppio a piano terra. Classe energetica non inferiore ad A3. Prestazione energetica in fase di rilascio.
Villetta a schiera composta da ampio soggiorno con angolo cottura, tre camere, due bagni, e giardino di proprietà mq. 69 e annesso box doppio a piano terra. Classe energetica non inferiore ad A3. Prestazione energetica in fase di rilascio.