GALBERA FG
ALSERIO (Como)
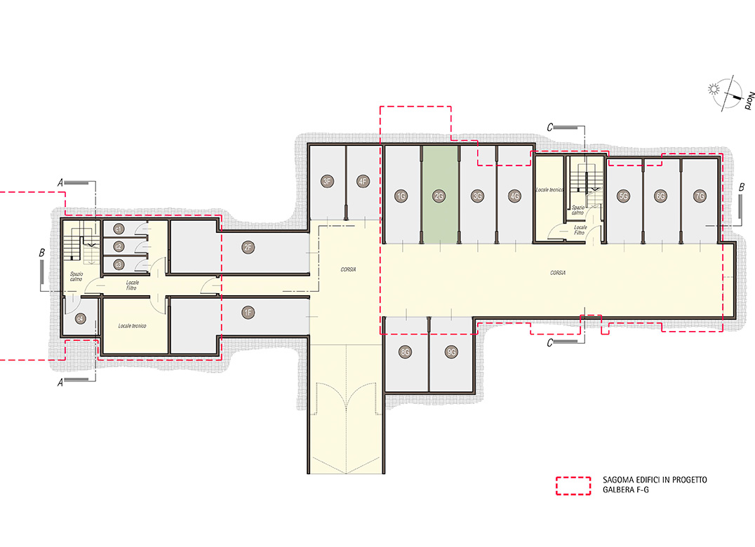
Box a Piano Interrato.
ALSERIO (Como)
Ad Alserio, proponiamo un nuovo complesso residenziale in zona verdeggiante, a basso consumo energetico, sviluppato su due piani abitabili fuori terra oltre ad un pratico piano interrato adibito a box. Immobile in classe energetica non inferiore ad A3 (valore di progetto indicativo). Disponiamo di varia gamma di tipologie di appartamenti bilocali, trilocali e quadrilocali con portico e giardino di proprietà relativi agli appartamenti piano terra e soleggiato balcone in dotazione agli appartamenti ai piani superiori.
Bilocale a Piano Primo composto da soggiorno-cottura, camera, bagno, vano tecnico e disimpegno. Terrazzo di mq. 13,21. Classe energetica non inferiore ad A3 (valore di progetto indicativo).
Un mese da firma Contratto
Quadrilocale a Piano Terra composto da soggiorno cottura, tre camere, due bagni, portico e due disimpegni. Giardino di proprietà di mq. 387,49. Classe energetica A4, prestazione energetica 39,19 kWh/mqannuo.
Un mese da firma Contratto
Quadrilocale a Piano Primo composto da soggiorno-cottura, tre camere, due bagni e due disimpegni. Terrazzo di mq. 26,76. Classe energetica A4, prestazione energetica 35,75 kWh/mqannuo.
Un mese da firma Contratto
Quadrilocale a Piano Terra composto da soggiorno-cottura, tre camere, due bagni, portico e disimpegno. Giardino di proprietà di mq. 204,07. Classe energetica A4, prestazione energetica 32,56 kWh/mqannuo.
Un mese da firma Contratto
Quadrilocale a Piano Primo composto da soggiorno-cottura, tre camere, due bagni e disimpegno. Terrazzo di mq. 18,45. Classe energetica A4, prestazione energetica 34,54 kWh/mqannuo.
Un mese da firma Contratto