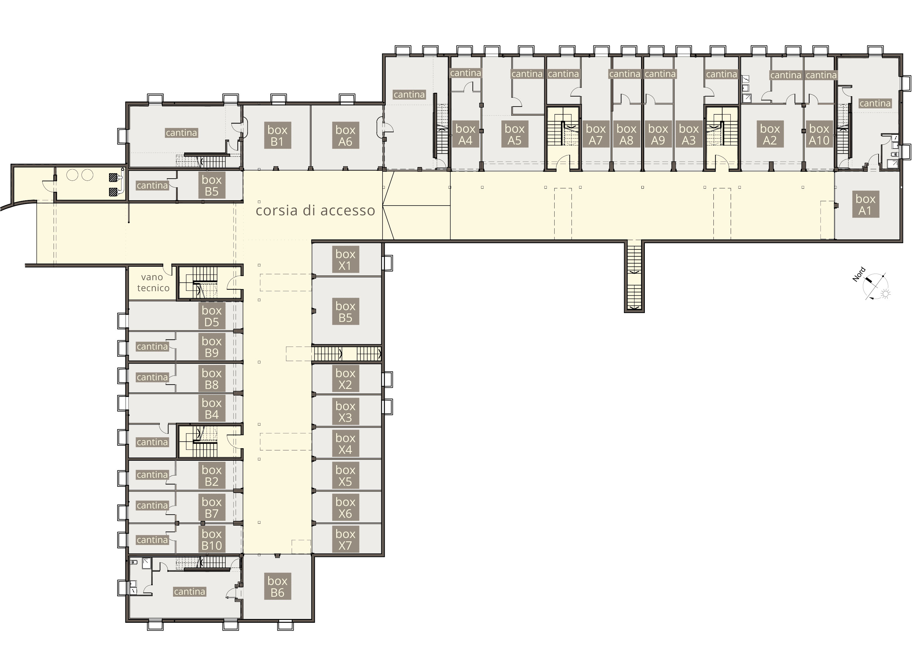
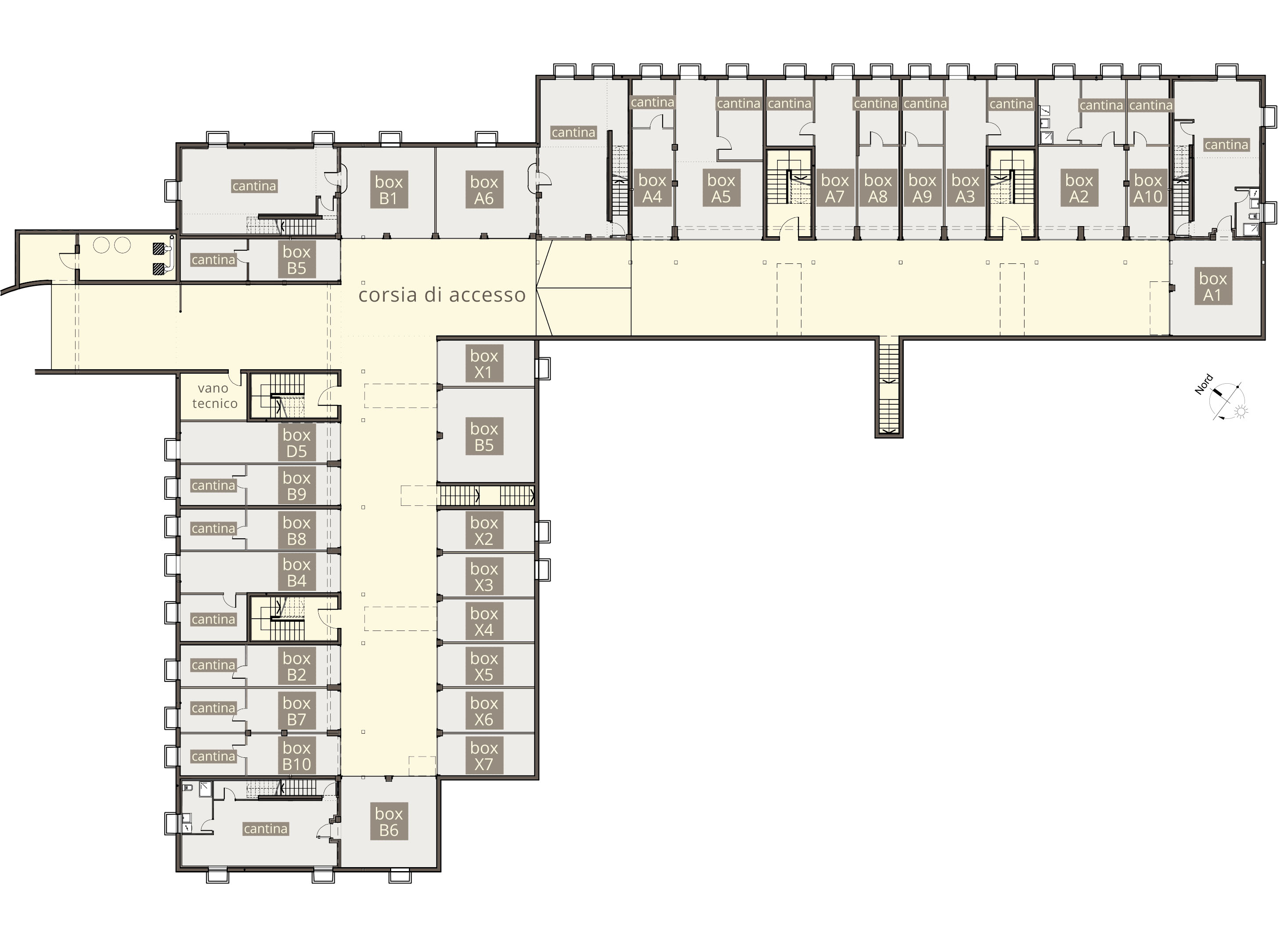
CASCINA VALERA

ANZANO DEL PARCO

Adiacente al Parco di Villa Carcano, in un contesto immerso nel verde, proponiamo immobili di recente costruzione in classe energetica C


 


Apri Google Maps

contattaci







Vorrei ricevere newsletter e comunicazioni commerciali
* campi obbligatori
Se non hai una email, contattaci al numero: 031-35.27.303