GALBERA HI
ALSERIO (Como)
Trilocale a Piano Terra composto da soggiorno-cottura, due camere, un bagno, portico e disimpegno. Giardino di proprietà di mq. 75,08. Classe energetica non inferiore ad A3 (valore di progetto indicativo).
ALSERIO (Como)
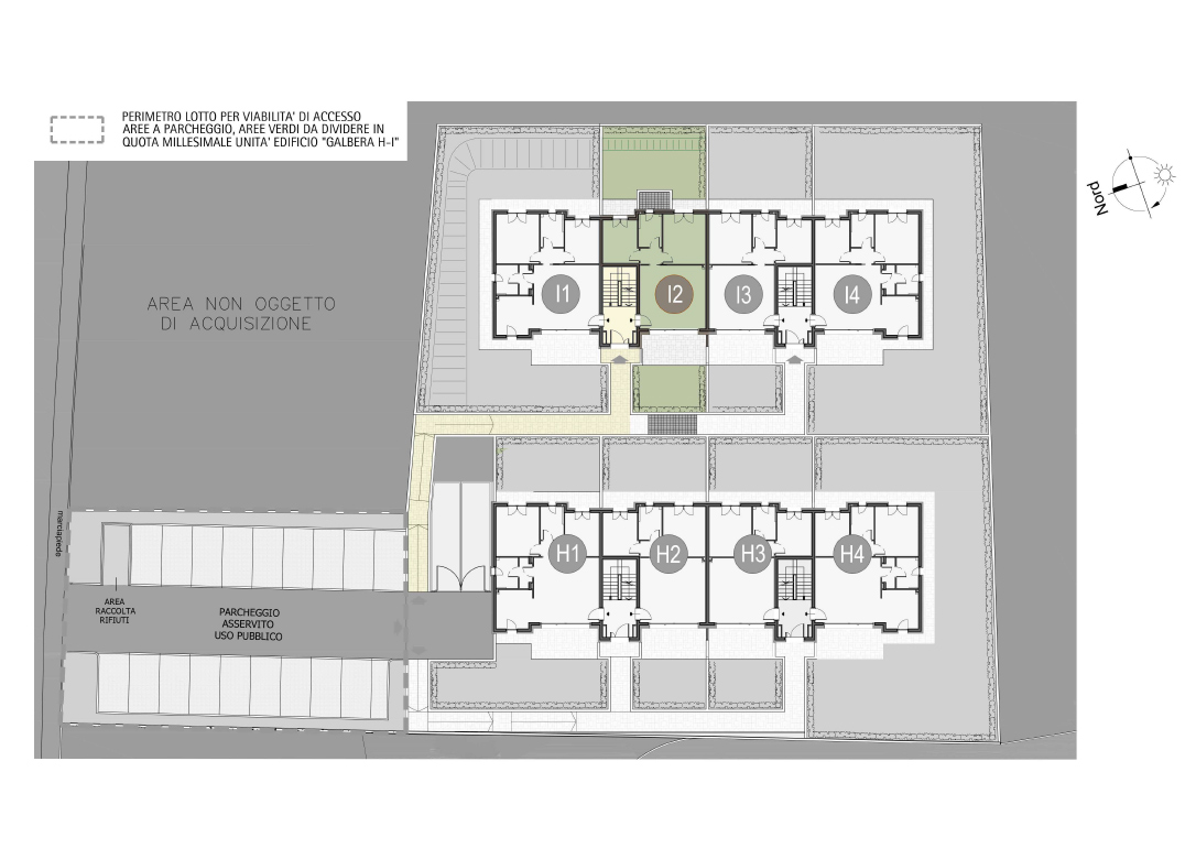
Ad Alserio, proponiamo un nuovo complesso residenziale in zona verdeggiante, a basso consumo energetico, sviluppato su due piani abitabili fuori terra oltre ad un pratico piano interrato adibito a box. Immobile in classe energetica non inferiore ad A3 (valore di progetto indicativo). Disponiamo trilocali con portico e giardino di proprietà relativi agli appartamenti piano terra e soleggiato balcone in dotazione agli appartamenti ai piani superiori.
Trilocale a Piano Terra composto da soggiorno-cottura, due camere, un bagno, portico e disimpegno. Giardino di proprietà di mq. 68,81 Classe energetica non inferiore ad A3 (valore di progetto indicativo).
Prevista Consegna 28/02/2027
Trilocale a Piano Terra composto da soggiorno,cucina,due camere, due bagni, portico e due disimpegni. Giardino di proprietà di mq. 110,02. Classe energetica non inferiore ad A3 (valore di progetto indicativo).
Prevista Consegna 28/02/2027
Trilocale a Piano Primo composto da soggiorno, cucina, due camere, due bagni, due disimpegni. Terrazzo di mq. 12,54. Classe energetica non inferiore ad A3 (valore di progetto indicativo).
Prevista Consegna 28/02/2027
Trilocale a Piano Primo composto da soggiorno-cottura, due camere, un bagno e disimpegno. Terrazzo di mq. 12,22. Classe energetica non inferiore ad A3 (valore di progetto indicativo).
Prevista Consegna 28/02/2027
Trilocale a Piano Primo composto da soggiorno-cottura, due camere, un bagno e disimpegno. Terrazzo di mq. 12,22. Classe energetica non inferiore ad A3 (valore di progetto indicativo).
Prevista Consegna 28/02/2027
Trilocale a Piano Primo composto da soggiorno,cucina abitabile, due camere, due bagni, e due disimpegni. Terrazzo di mq. 12,54. Classe energetica non inferiore ad A3 (valore di progetto indicativo).
Prevista Consegna 28/02/2027
Trilocale a Piano Terra composto da soggiorno,cucina,due camere, due bagni, portico e due disimpegni. Giardino di proprietà di mq. 248,04. Classe energetica non inferiore ad A3 (valore di progetto indicativo).
Prevista Consegna 28/02/2027
Trilocale a Piano Terra composto da soggiorno-cottura, due camere, un bagno, portico e disimpegno. Giardino di proprietà di mq. 80,17. Classe energetica non inferiore ad A3 (valore di progetto indicativo).
Prevista Consegna 28/02/2027
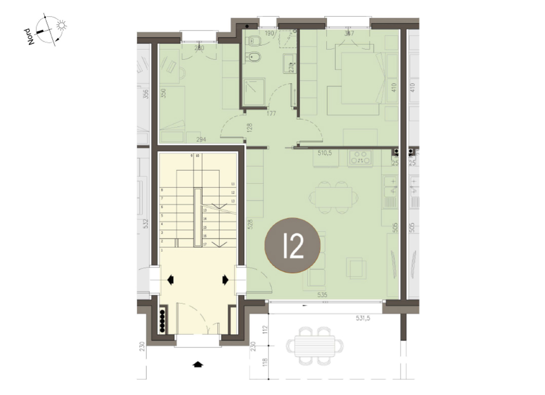
Trilocale a Piano Terra composto da soggiorno-cottura, due camere, un bagno, portico e disimpegno. Giardino di proprietà di mq. 75,08. Classe energetica non inferiore ad A3 (valore di progetto indicativo).
Prevista Consegna 28/02/2027
Trilocale a Piano Terra composto da soggiorno,cucina, due camere, due bagni, portico e due disimpegni. Giardino di proprietà di mq. 227,27.Classe energetica non inferiore ad A3 (valore di progetto indicativo).
Prevista Consegna 28/02/2027
Trilocale a Piano Primo composto da soggiorno, cucina, due camere, due bagni e due disimpegni. Terrazzo di mq. 12,54. Classe energetica non inferiore ad A3 (valore di progetto indicativo).
Prevista Consegna 28/02/2027
Trilocale a Piano Primo composto da soggiorno-cottura, due camere, un bagno e disimpegno. Terrazzo di mq. 12.22. Classe energetica non inferiore ad A3 (valore di progetto indicativo).
Prevista Consegna 28/02/2027
Trilocale a Piano Primo composto da soggiorno-cottura, due camere, un bagno e un disimpegni. Terrazzo di mq. 12,22. Classe energetica non inferiore ad A3 (valore di progetto indicativo).
Prevista Consegna 28/02/2027
Trilocale a Piano Primo composto da soggiorno,cucina, due camere, due bagni, e due disimpegni. Terrazzo di mq. 12,54. Classe energetica non inferiore ad A3 (valore di progetto indicativo).
Prevista Consegna 28/02/2027
Trilocale a Piano Terra composto da soggiorno, cucina, due camere, due bagni, portico e due disimpegni. Giardino di proprietà di mq. 261,43. Classe energetica non inferiore ad A3 (valore di progetto indicativo).
Prevista Consegna 28/02/2027
Trilocale a Piano Terra composto da soggiorno-cottura, due camere, un bagno, portico e disimpegno. Giardino di proprietà di mq. 69,10. Classe energetica non inferiore ad A3 (valore di progetto indicativo).
Prevista Consegna 28/02/2027