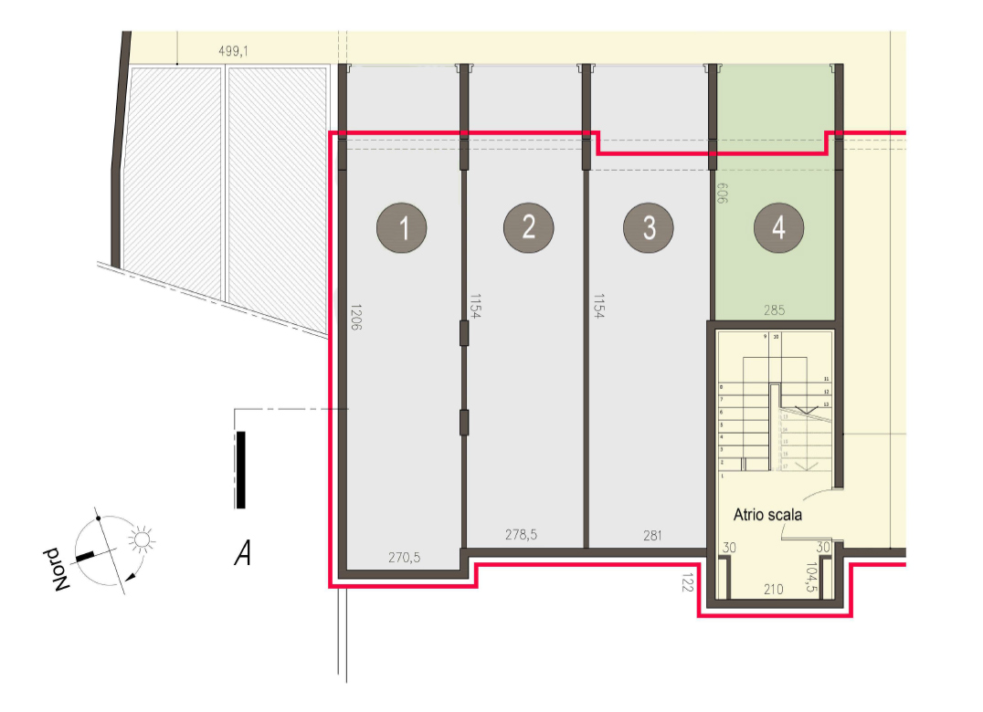
Box 4
-

GALBERA HI

ALSERIO (Como)

Box a piano interrato

€ 25.000
19.31 mq
Prevista Consegna 31/12/2026
  • 1
  • ND
Aggiungi a preferiti
Planimetria Box Specifico
1 di 2
Planimetria Piano Interrato
2 di 2
1 di 5
2 di 5
3 di 5
4 di 5
5 di 5

contattaci







Vorrei ricevere newsletter e comunicazioni commerciali
* campi obbligatori
Se non hai una email, contattaci al numero: 031-35.27.303

GALBERA HI

ALSERIO (Como)

DIRETTAMENTE DAL COSTRUTTORE SENZA MEDIAZIONE. Ad Alserio, proponiamo un nuovo complesso residenziale in zona verdeggiante, a basso consumo energetico, sviluppato su due piani abitabili fuori terra oltre ad un pratico piano interrato adibito a box. Immobile in classe energetica non inferiore ad A3 (valore di progetto indicativo). Disponiamo trilocali con portico e giardino di proprietà relativi agli appartamenti piano terra e soleggiato balcone in dotazione agli appartamenti ai piani superiori. Le immagini e la rappresentazione grafica dei prodotti (immagini, dati tecnici e descrizioni) è realizzata al solo scopo di illustrare il prodotto ed è puramente indicativa. I prodotti possono pertanto differire da quanto rappresentato.


 


In Costruzione
in vendita
1 di 6

TUTTE LE DISPONIBILITÀ IN GALBERA HI

Ordina per
  • H3 - Trilocale

    Trilocale a Piano Terra composto da soggiorno-cottura, due camere, un bagno, portico e disimpegno. Giardino di proprietà di mq. 69,10. Classe energetica non inferiore ad A3 (valore di progetto). Le immagini e la rappresentazione grafica dei prodotti (immagini, dati tecnici e descrizioni) è realizzata al solo scopo di illustrare il prodotto ed è puramente indicativa. I prodotti possono pertanto differire da quanto rappresentato.

    Prevista Consegna 31/12/2026

    81.02 mq
    Prezzo € 227.000
    VEDI IMMOBILE
    VEDI IMMOBILE
  • H1 - Trilocale

    Trilocale a Piano Terra composto da soggiorno,cucina,due camere, due bagni, portico e due disimpegni. Giardino di proprietà di mq. 110,02. Classe energetica non inferiore ad A3 (valore di progetto). Le immagini e la rappresentazione grafica dei prodotti (immagini, dati tecnici e descrizioni) è realizzata al solo scopo di illustrare il prodotto ed è puramente indicativa. I prodotti possono pertanto differire da quanto rappresentato.

    Prevista Consegna 31/12/2026

    105.29 mq
    Prezzo € 295.000
    VEDI IMMOBILE
    VEDI IMMOBILE
  • I8 - Trilocale

    Trilocale a Piano Primo composto da soggiorno, cucina, due camere, due bagni, due disimpegni. Terrazzo di mq. 12,54. Classe energetica non inferiore ad A3 (valore di progetto). Le immagini e la rappresentazione grafica dei prodotti (immagini, dati tecnici e descrizioni) è realizzata al solo scopo di illustrare il prodotto ed è puramente indicativa. I prodotti possono pertanto differire da quanto rappresentato.

    Prevista Consegna 31/12/2026

    100.89 mq
    Prezzo € 280.000
    VEDI IMMOBILE
    VEDI IMMOBILE
  • I7 - Trilocale

    Trilocale a Piano Primo composto da soggiorno-cottura, due camere, un bagno e disimpegno. Terrazzo di mq. 12,22. Classe energetica non inferiore ad A3 (valore di progetto). Le immagini e la rappresentazione grafica dei prodotti (immagini, dati tecnici e descrizioni) è realizzata al solo scopo di illustrare il prodotto ed è puramente indicativa. I prodotti possono pertanto differire da quanto rappresentato.

    Prevista Consegna 31/12/2026

    78.26 mq
    Prezzo € 215.000
    VEDI IMMOBILE
    VEDI IMMOBILE
  • I6 - Trilocale

    Trilocale a Piano Primo composto da soggiorno-cottura, due camere, un bagno e disimpegno. Terrazzo di mq. 12,22. Classe energetica non inferiore ad A3 (valore di progetto). Le immagini e la rappresentazione grafica dei prodotti (immagini, dati tecnici e descrizioni) è realizzata al solo scopo di illustrare il prodotto ed è puramente indicativa. I prodotti possono pertanto differire da quanto rappresentato.

    Prevista Consegna 31/12/2026

    78.26 mq
    Prezzo € 215.000
    VEDI IMMOBILE
    VEDI IMMOBILE
  • I5 - Trilocale

    Trilocale a Piano Primo composto da soggiorno,cucina abitabile, due camere, due bagni, e due disimpegni. Terrazzo di mq. 12,54. Classe energetica non inferiore ad A3 (valore di progetto). Le immagini e la rappresentazione grafica dei prodotti (immagini, dati tecnici e descrizioni) è realizzata al solo scopo di illustrare il prodotto ed è puramente indicativa. I prodotti possono pertanto differire da quanto rappresentato.

    Prevista Consegna 31/12/2026

    100.89 mq
    Prezzo € 280.000
    VEDI IMMOBILE
    VEDI IMMOBILE
  • I4 - Trilocale

    Trilocale a Piano Terra composto da soggiorno,cucina,due camere, due bagni, portico e due disimpegni. Giardino di proprietà di mq. 248,04. Classe energetica non inferiore ad A3 (valore di progetto). Le immagini e la rappresentazione grafica dei prodotti (immagini, dati tecnici e descrizioni) è realizzata al solo scopo di illustrare il prodotto ed è puramente indicativa. I prodotti possono pertanto differire da quanto rappresentato.

    Prevista Consegna 31/12/2026

    110.81 mq
    Prezzo € 312.000
    VEDI IMMOBILE
    VEDI IMMOBILE
  • I3 - Trilocale

    Trilocale a Piano Terra composto da soggiorno-cottura, due camere, un bagno, portico e disimpegno. Giardino di proprietà di mq. 80,17. Classe energetica non inferiore ad A3 (valore di progetto). Le immagini e la rappresentazione grafica dei prodotti (immagini, dati tecnici e descrizioni) è realizzata al solo scopo di illustrare il prodotto ed è puramente indicativa. I prodotti possono pertanto differire da quanto rappresentato.

    Prevista Consegna 31/12/2026

    81.47 mq
    Prezzo € 227.000
    VEDI IMMOBILE
    VEDI IMMOBILE
  • I2 - Trilocale

    Trilocale a Piano Terra composto da soggiorno-cottura, due camere, un bagno, portico e disimpegno. Giardino di proprietà di mq. 75,08. Classe energetica non inferiore ad A3 (valore di progetto). Le immagini e la rappresentazione grafica dei prodotti (immagini, dati tecnici e descrizioni) è realizzata al solo scopo di illustrare il prodotto ed è puramente indicativa. I prodotti possono pertanto differire da quanto rappresentato.

    Prevista Consegna 31/12/2026

    81.26 mq
    Prezzo € 225.000
    VEDI IMMOBILE
    VEDI IMMOBILE
  • I1 - Trilocale

    Trilocale a Piano Terra composto da soggiorno,cucina, due camere, due bagni, portico e due disimpegni. Giardino di proprietà di mq. 227,27.Classe energetica non inferiore ad A3 (valore di progetto). Le immagini e la rappresentazione grafica dei prodotti (immagini, dati tecnici e descrizioni) è realizzata al solo scopo di illustrare il prodotto ed è puramente indicativa. I prodotti possono pertanto differire da quanto rappresentato.

    Prevista Consegna 31/12/2026

    109.98 mq
    Prezzo € 308.000
    VEDI IMMOBILE
    VEDI IMMOBILE
  • H8 - Trilocale

    Trilocale a Piano Primo composto da soggiorno, cucina, due camere, due bagni e due disimpegni. Terrazzo di mq. 12,54. Classe energetica non inferiore ad A3 (valore di progetto). Le immagini e la rappresentazione grafica dei prodotti (immagini, dati tecnici e descrizioni) è realizzata al solo scopo di illustrare il prodotto ed è puramente indicativa. I prodotti possono pertanto differire da quanto rappresentato.

    Prevista Consegna 31/12/2026

    100.92 mq
    Prezzo € 280.000
    VEDI IMMOBILE
    VEDI IMMOBILE
  • H7 - Trilocale

    Trilocale a Piano Primo composto da soggiorno-cottura, due camere, un bagno e disimpegno. Terrazzo di mq. 12.22. Classe energetica non inferiore ad A3 (valore di progetto). Le immagini e la rappresentazione grafica dei prodotti (immagini, dati tecnici e descrizioni) è realizzata al solo scopo di illustrare il prodotto ed è puramente indicativa. I prodotti possono pertanto differire da quanto rappresentato.

    Prevista Consegna 31/12/2026

    78.26 mq
    Prezzo € 217.000
    VEDI IMMOBILE
    VEDI IMMOBILE
  • H5 - Trilocale

    Trilocale a Piano Primo composto da soggiorno,cucina, due camere, due bagni, e due disimpegni. Terrazzo di mq. 12,54. Classe energetica non inferiore ad A3 (valore di progetto). Le immagini e la rappresentazione grafica dei prodotti (immagini, dati tecnici e descrizioni) è realizzata al solo scopo di illustrare il prodotto ed è puramente indicativa. I prodotti possono pertanto differire da quanto rappresentato.

    Prevista Consegna 31/12/2026

    100.92 mq
    Prezzo € 278.000
    VEDI IMMOBILE
    VEDI IMMOBILE
  • H4 - Trilocale

    Trilocale a Piano Terra composto da soggiorno, cucina, due camere, due bagni, portico e due disimpegni. Giardino di proprietà di mq. 261,43. Classe energetica non inferiore ad A3 (valore di progetto). Le immagini e la rappresentazione grafica dei prodotti (immagini, dati tecnici e descrizioni) è realizzata al solo scopo di illustrare il prodotto ed è puramente indicativa. I prodotti possono pertanto differire da quanto rappresentato.

    Prevista Consegna 31/12/2026

    111.35 mq
    Prezzo € 312.000
    VEDI IMMOBILE
    VEDI IMMOBILE
  • 16 - Box

    Box doppio a piano interrato

    Prevista Consegna 31/12/2026

    37.53 mq
    Prezzo € 47.000
    VEDI IMMOBILE
    VEDI IMMOBILE
  • 15 - Box

    Box doppio a piano interrato

    Prevista Consegna 31/12/2026

    36.68 mq
    Prezzo € 47.000
    VEDI IMMOBILE
    VEDI IMMOBILE
  • 14 - Box

    Box doppio a piano interrato

    Prevista Consegna 31/12/2026

    36.68 mq
    Prezzo € 47.000
    VEDI IMMOBILE
    VEDI IMMOBILE
  • 13 - Box

    Box a piano interrato

    Prevista Consegna 31/12/2026

    18.27 mq
    Prezzo € 25.000
    VEDI IMMOBILE
    VEDI IMMOBILE
  • 11 - Box

    Box doppio a piano interrato

    Prevista Consegna 31/12/2026

    37.80 mq
    Prezzo € 47.000
    VEDI IMMOBILE
    VEDI IMMOBILE
  • 10 - Box

    Box a piano interrato

    Prevista Consegna 31/12/2026

    21.63 mq
    Prezzo € 27.000
    VEDI IMMOBILE
    VEDI IMMOBILE
  • 9 - Box

    Box a piano interrato

    Prevista Consegna 31/12/2026

    20.81 mq
    Prezzo € 27.000
    VEDI IMMOBILE
    VEDI IMMOBILE
  • 8 - Box

    Box a piano interrato

    Prevista Consegna 31/12/2026

    20.94 mq
    Prezzo € 27.000
    VEDI IMMOBILE
    VEDI IMMOBILE
  • 6 - Box

    Box doppio a piano interrato

    Prevista Consegna 31/12/2026

    37.20 mq
    Prezzo € 45.000
    VEDI IMMOBILE
    VEDI IMMOBILE
  • 5 - Box

    Box a piano interrato

    Prevista Consegna 31/12/2026

    21.63 mq
    Prezzo € 27.000
    VEDI IMMOBILE
    VEDI IMMOBILE
  • 4 - Box

    Box a piano interrato

    Prevista Consegna 31/12/2026

    19.31 mq
    Prezzo € 25.000
    VEDI IMMOBILE
    VEDI IMMOBILE
  • 3 - Box

    Box doppio a piano interrato

    Prevista Consegna 31/12/2026

    35.33 mq
    Prezzo € 45.000
    VEDI IMMOBILE
    VEDI IMMOBILE
  • 2 - Box

    Box doppio a piano interrato

    Prevista Consegna 31/12/2026

    34.10 mq
    Prezzo € 45.000
    VEDI IMMOBILE
    VEDI IMMOBILE
  • 1 - Box

    Box doppio a piano interrato

    Prevista Consegna 31/12/2026

    36.89 mq
    Prezzo € 47.000
    VEDI IMMOBILE
    VEDI IMMOBILE