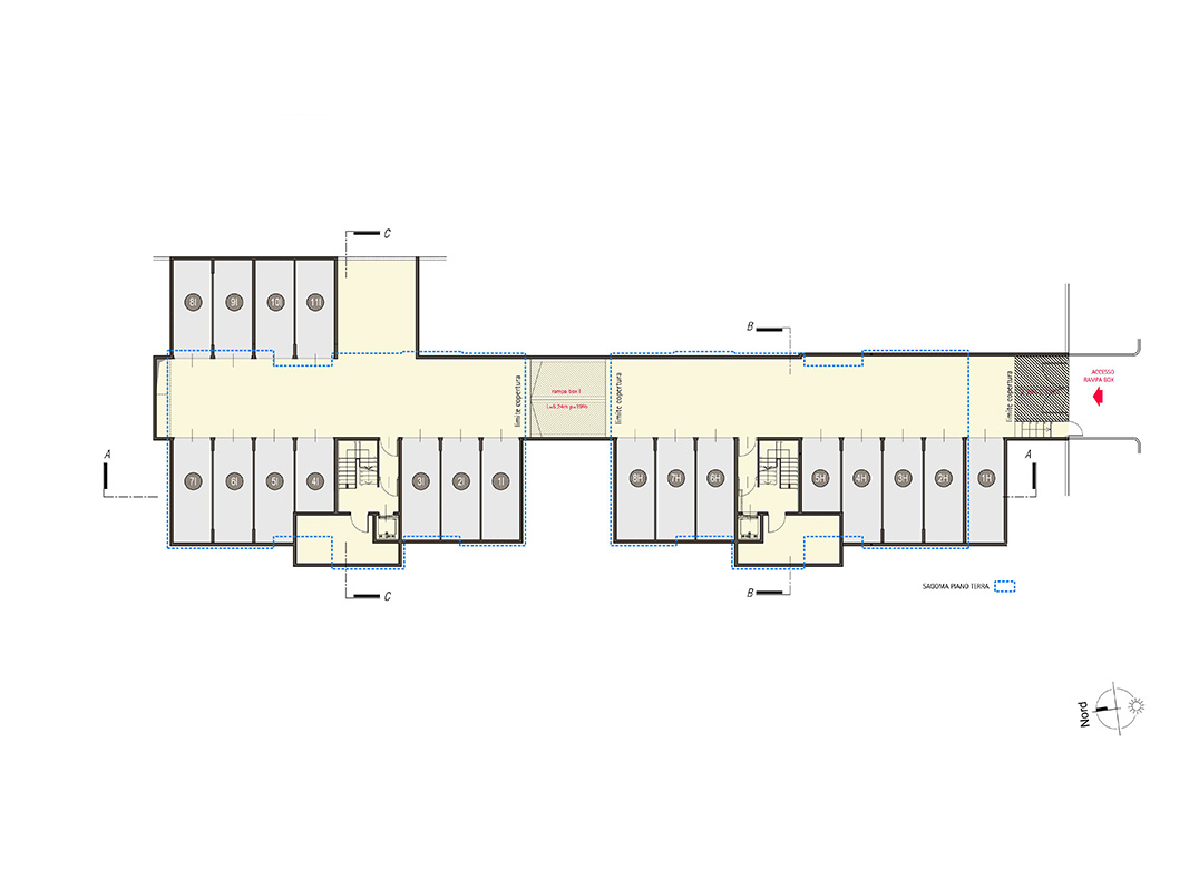
PARCO HI
BREGNANO (Como)
Trilocale a Piano terra con cucina/soggiorno, due camere, due bagni e balcone di 13 mq. Classe energetica A3 (valore di progetto indicativo)
BREGNANO (Como)
Posto in zona tranquilla e ricca di verde. Situato a poca distanza dalla S.S.dei Giovi, e nelle vicinanze della stazione FNM di Cadorago e dall'ingresso autostradale della A9. Proponiamo delle bellissime soluzioni realizzate con i piu' innovativi sistemi di risparmio energetico.
Trilocale a Piano terra con cucina/soggiorno, due camere, due bagni e giardino di proprietà di 156 mq. Classe energetica A3 (valore di progetto indicativo)
Prevista Consegna 30/06/2026
Trilocale a Piano terra con cucina/soggiorno, due camere, due bagni e giardino di proprietà di 196 mq. Classe energetica A3 (valore di progetto indicativo)
Prevista Consegna 30/06/2026
Trilocale a Piano terra con cucina/soggiorno, due camere, due bagni e balcone di 13 mq. Classe energetica A3 (valore di progetto indicativo)
Prevista Consegna 30/06/2026
Trilocale a Piano Primo con cucina/soggiorno, due camere, due bagni e balcone di 13 mq. Classe energetica A3 (valore di progetto indicativo)
Prevista Consegna 30/06/2026