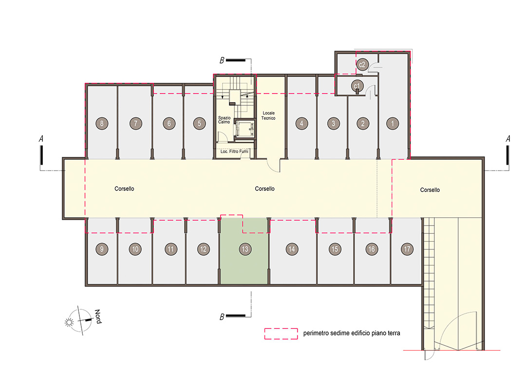
Box 13
-

GIOTTO A

ROVELLASCA (Como)

Box a piano interrato

€ 40.000
30.48 mq
Prevista Consegna 30/09/2027
  • 1
  • ND
Aggiungi a preferiti
Planimetria Box
1 di 2
Planimetria Piano Interrato
2 di 2
1 di 5
2 di 5
3 di 5
4 di 5
5 di 5

contattaci







Vorrei ricevere newsletter e comunicazioni commerciali
* campi obbligatori
Se non hai una email, contattaci al numero: 031-35.27.303

GIOTTO A

ROVELLASCA (Como)

DIRETTAMENTE DAL COSTRUTTORE SENZA MEDIAZIONE. Nuovo cantiere a Rovellasca, con ampie aree verdi circostanti, sito in una posizione strategica a pochi metri dalla stazione FNM di Rovellasca e dall'autostrada di Turate. Proponiamo degli appartamenti dalle ricercate scelte costruttive ed architettoniche. Possibilita' di personalizzare gli interni. Immobile in classe energetica non inferiore ad A3 (valore di progetto indicativo). Le immagini e la rappresentazione grafica dei prodotti (immagini, dati tecnici e descrizioni) è realizzata al solo scopo di illustrare il prodotto ed è puramente indicativa. I prodotti possono pertanto differire da quanto rappresentato.


 


In Costruzione
in vendita
1 di 6

TUTTE LE DISPONIBILITÀ IN GIOTTO A

Ordina per