I PRATI AB
COLVERDE (Como)
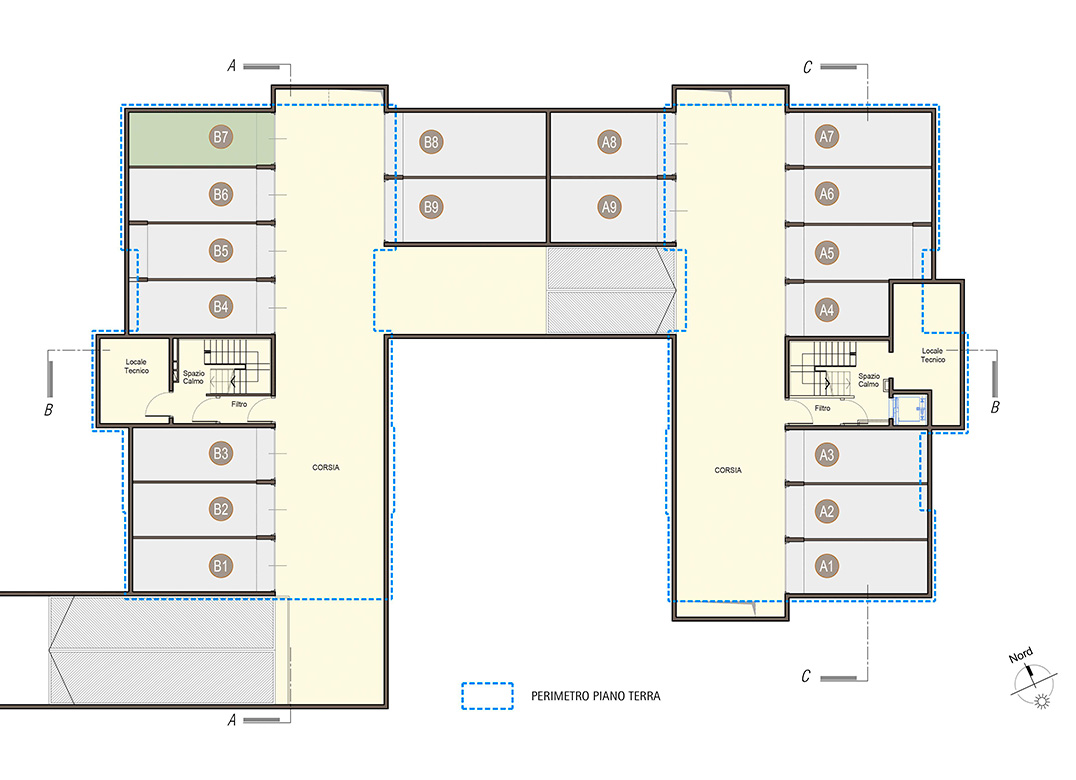
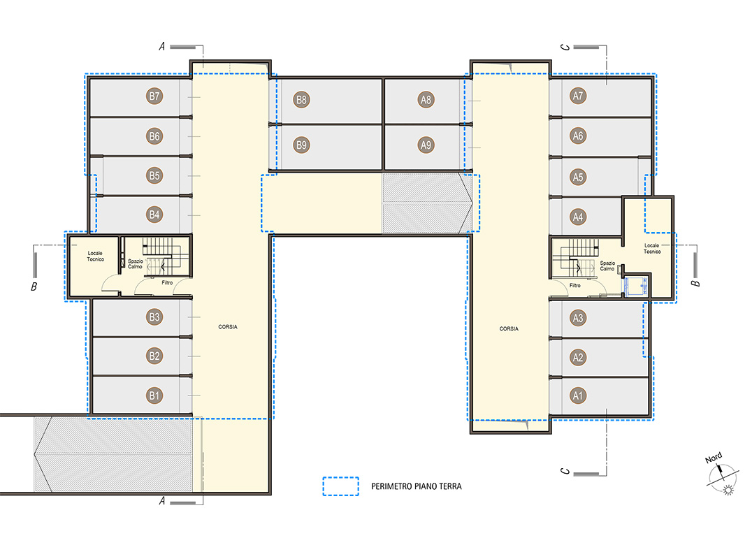
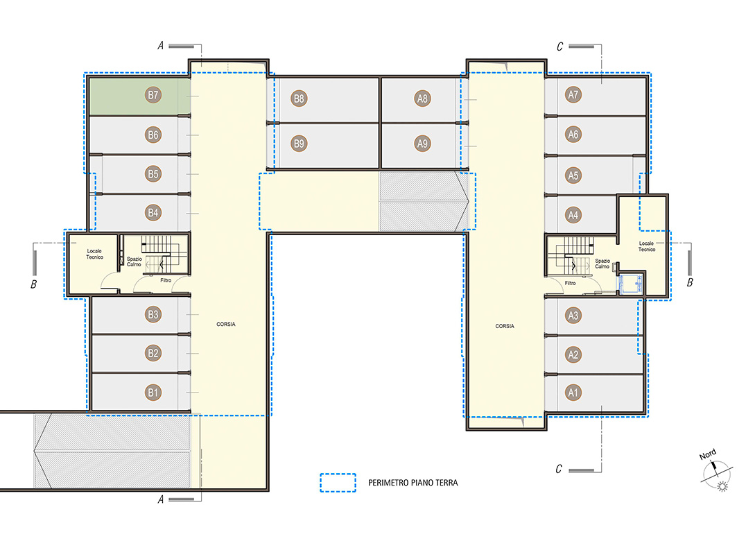
Box a piano interrato
COLVERDE (Como)
A Colverde, proponiamo edifici residenziali a basso consumo energetico ubicati in posizione di facile accesso alle principali attivita' commerciali e ai vari servizi collettivi quali, asilo nido, scuole elementari, medie e superiori, farmacie e posta. Proponiamo appartamenti di varia metratura, Bilo-Trilo e Quadrilocali con portico e giardino di proprietà per quelli al piano terra e con terrazzo per i piani superiori. Al piano interrato sono presenti i box. Immobile in classe energetica non inferiore ad A3 (valore di progetto indicativo).
Bilocale a Piano Primo con soggiorno con angolo cottura, una camera, un bagno, disimpegno e terrazzo di 8 mq. Classe energetica A3, valore di progetto.
Prevista Consegna 31/12/2026
Trilocale a piano primo con soggiorno con angolo cottura, due camere, due bagni e terrazzo di 13 mq. Classe energetica A3, valore di progetto.
Prevista Consegna 31/12/2026
Trilocale a piano primo con soggiorno con cucina separata, due camere, due bagni, e terrazzo di 12 mq. Classe energetica A3, valore di progetto
Prevista Consegna 31/12/2026
Trilocale a piano primo con soggiorno con angolo cottura, due camere, due bagni, e terrazzo di 12 mq. Classe energetica A3, valore di progetto
Prevista Consegna 31/12/2026