LA VIGNA
OLGIATE COMASCO (Como)
Trilocale a Piano Terzo con soggiorno con angolo cottura, due camere, due bagni e terrazzo di 9 mq. Classe energetica A3, valore di progetto
OLGIATE COMASCO (Como)
A Olgiate Comasco proponiamo un nuovo complesso residenziale in area serena e verdeggiante, non lontana dal confine svizzero e da Como, a basso consumo energetico e sviluppato su quattro piani abitabili fuori terra e box auto. Immobili in classe energetica non inferiore ad A3 (valore di progetto indicativo). Disponiamo di varia gamma di tipologie di appartamenti.
Bilocale a Piano Terra con soggiorno con cucina, camera, bagno, portico e giardino di proprietà di 66 mq. Classe energetica A3, valore di progetto.
Prevista Consegna 30/04/2027
Bilocale a Piano Terzo con soggiorno con cucina a vista, camera, bagno e terrazzo di 8 mq. Classe energetica A3, valore di progetto
Prevista Consegna 30/04/2027
Bilocale a Piano Terra con soggirno con cucina a vista, camera, bagno, portico e giardino di proprietà di 64 mq. Classe energetica A3, valore di progetto
Prevista Consegna 30/04/2027
Bilocale a Piano Secondo con soggiorno con cucina a vista, una camera, bagno e terrazzo di 8 mq. Classe energetica A3, valore di progetto
Prevista Consegna 30/04/2027
Bilocale a Piano Primo con soggiorno con cucina a vista, camera, bagno e terrazzo di 8 mq. Classe energetica A3, valore di progetto
Prevista Consegna 30/04/2027
Trilocale a Piano Terra con soggiorno con angolo cottura, due camere, due bagni, portico e giardino di proprietà di 166 mq. Classe energetica A3, valore di progetto
Prevista Consegna 30/04/2027
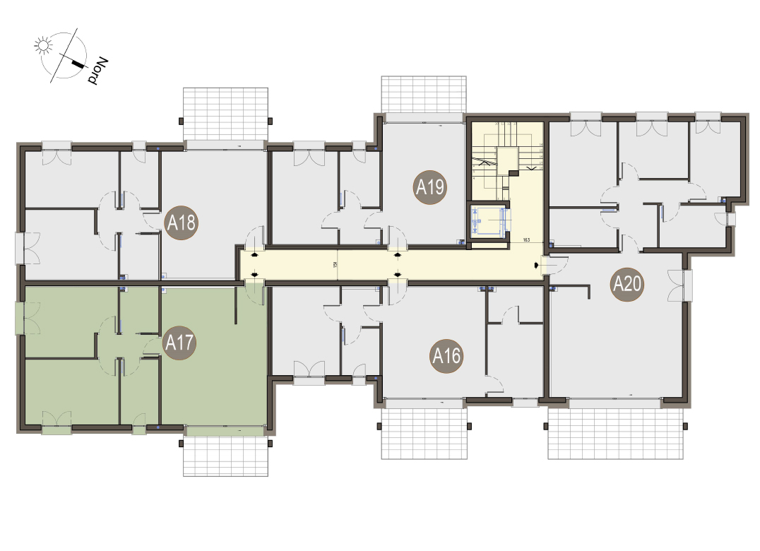
Trilocale a Piano Terzo con soggiorno con cucina a vista, due camere, due bagni, e terrazzo di 10 mq. Classe energetica A3, valore di progetto
Prevista Consegna 30/04/2027
Trilocale a Piano Terzo con soggiorno con angolo cottura, due camere, due bagni e terrazzo di 9 mq. Classe energetica A3, valore di progetto
Prevista Consegna 30/04/2027
Trilocale a Piano Terzo con soggiorno con cucina vista, due camere, due bagni e terrazzo di 10 mq. Classe energetica A3, valore di progetto
Prevista Consegna 30/04/2027
Trilocale a Piano Secondo con soggiorno con cucina a vista, due camere, due bagni, e terrazzo di 10 mq. Classe energetica A3, valore di progetto
Prevista Consegna 30/04/2027
Trilocale a Piano Secondo con soggiorno con angolo cottura, due camere, due bagni e terrazzo di 9 mq. Classe energetica A3, valore di progetto.
Prevista Consegna 30/04/2027
Trilocale a Piano Primo con soggiorno con cucina con angolo cottura, due camere, due bagni e terrazzo di 10 mq. Classe energetica A3, valore di progetto.
Prevista Consegna 30/04/2027
Trilocale a Piano Primo con soggiorno con angolo cottura, due camere, due bagni e terrazzo di 8 mq. Classe energetica A3, valore di progetto
Prevista Consegna 30/04/2027
Trilocale a Piano Primo con soggiorno con cucina a vista, due camere, due bagni e terrazzo di 10 mq. Classe energetica A3, valore di progetto
Prevista Consegna 30/04/2027
Trilocale a Piano Terra con soggiorno con cucina a vista, due camera, due bagni, portico e giardino di proprietà di 140 mq. Classe energetica A3, valore di progetto.
Prevista Consegna 30/04/2027
Trilocale a Piano Secondo con soggiorno con cucina a vista, due camere, due bagni e terrazzo di 10 mq. Classe energetica A3, valore di progetto
Prevista Consegna 30/04/2027
Quadrilocale a Piano Primo con soggiorno con cucina a vista, tre camere, due bagni, disimpegno e terrazzo di 17 mq. Classe energetica A3, valore di progetto
Prevista Consegna 30/04/2027
Quadrilocale a Piano Secondo con soggiorno con cucina a vista, tre camere, due bagni, disimpegno e terrazzo di 17 mq. Classe energetica A3,valore di progetto
Prevista Consegna 30/04/2027
Quadrilocale a Piano terra con soggiorno con cucina a vista, tre camere, due bagni, portico e giardino di proprietà di 148 mq. Classe energetica A3, valore di progetto.
Prevista Consegna 30/04/2027
Quadrilocale a Piano Terzo con soggiorno con cucina a vista, tre camere, due bagni, disimpegno e terrazzo di 17 mq. Classe energetica A3 valore di progetto
Prevista Consegna 30/04/2027