RESIDENZA TRENTO
CABIATE (Como)
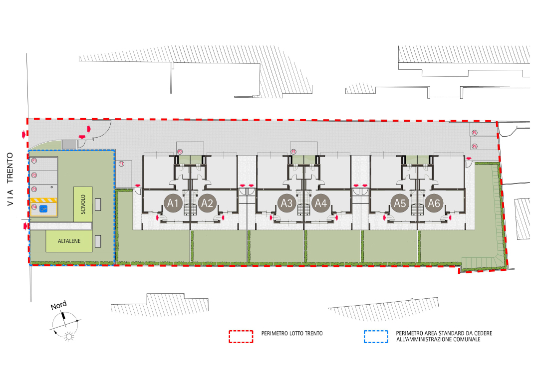
Villa Bifamiliare con cucina con soggiorno, tre camere, tre bagni, ingresso, terrazzo, ripostiglio, portico, giardino di proprietà di 80 mq, box doppio. Impianto fotovoltaico privato da 6,5 kw. Classe energetica A3 (valore di progetto).
CABIATE (Como)
DIRETTAMENTE DAL COSTRUTTORE SENZA MEDIAZIONE. A Cabiate, in una verdeggiante e soleggiata posizione proponiamo ville biifamiliari dalle ricercate scelte costruttive ed architettoniche con ampi giardini di proprietà, box doppi e posti auto. Le soluzioni abitative saranno realizzate in classe energetica non inferiore ad A3.
Villa Bifamiliare con cucina con soggiorno, tre camere, due bagni, ingresso, terrazzo, portico, giardino di proprietà di 128 mq, box doppio e posto auto. Impianto fotovoltaico privato da 6,5 kw. Classe energetica A3 (valore di progetto).
Prevista Consegna 31/10/2026
Villa Bifamiliare con cucina con soggiorno, tre camere, due bagni, ingresso, terrazzo, portico, giardino di proprietà di 80 mq, box doppio e posto auto. Impianto fotovoltaico privato da 6,5 kw. Classe energetica A3 (valore di progetto).
Prevista Consegna 31/10/2026
Villa Bifamiliare con cucina con soggiorno, tre camere, tre bagni, ingresso, ripostiglio, terrazzo, portico, giardino di proprietà di 80 mq, box doppio e posto auto. Impianto fotovoltaico privato da 6,5 kw. Classe energetica A3 (valore di progetto).
Prevista Consegna 31/10/2026
Villa Bifamiliare con cucina con soggiorno, tre camere, tre bagni, ingresso, terrazzo, ripostiglio, portico, giardino di proprietà di 80 mq, box doppio. Impianto fotovoltaico privato da 6,5 kw. Classe energetica A3 (valore di progetto).
Prevista Consegna 31/10/2026
Villa Bifamiliare con cucina con soggiorno, tre camere, tre bagni, ingresso, ripostiglio, terrazzo, portico, giardino di proprietà di 80 mq, box doppio. Impianto fotovoltaico privato da 6,5 kw. Classe energetica A3 (valore di progetto).
Prevista Consegna 31/10/2026
Villa Bifamiliare con cucina con soggiorno, tre camere, tre bagni, ingresso, ripostiglio, terrazzo, portico, giardino di proprietà di 200 mq, box doppio, due posti auto e area esterna di 70 mq. Impianto fotovoltaico privato da 6,5 kw. Classe energetica A3 (valore di progetto).
Prevista Consegna 01/10/2026