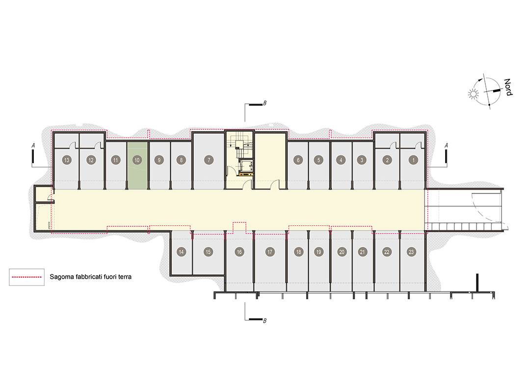
Box 10
-

PARINI G

LOMAZZO (Como)

Box a Piano Interrato

€ 28.000
19.76 mq
Prevista Consegna 31/12/2026
  • 1
  • ND
Aggiungi a preferiti
Planimetria Box Specifico
1 di 2
Planimetria Piano Interrato
2 di 2
1 di 5
2 di 5
3 di 5
4 di 5
5 di 5

contattaci







Vorrei ricevere newsletter e comunicazioni commerciali
* campi obbligatori
Se non hai una email, contattaci al numero: 031-35.27.303

PARINI G

LOMAZZO (Como)

DIRETTAMENTE DAL COSTRUTTORE SENZA MEDIAZIONE. A Lomazzo, l'iniziativa e' posta in una vicinanza strategica delle principali vie di comunicazione, a pochi metri dalla stazione. A tutto questo la posizione abbina il piacere di un contesto indipendente, salubre ed immerso nel verde. Le unita' immobiliari spaziano dal Bilocale al Trilocale e dispongono di box, balconi e giardini. Le immagini e la rappresentazione grafica dei prodotti (immagini, dati tecnici e descrizioni) è realizzata al solo scopo di illustrare il prodotto ed è puramente indicativa. I prodotti possono pertanto differire da quanto rappresentato.


 


In Costruzione
in vendita
1 di 5

TUTTE LE DISPONIBILITÀ IN PARINI G

Ordina per