IL CARPINO D
CADORAGO (Como)
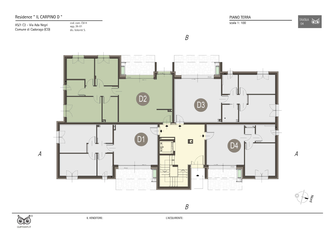
Quadrilocale a Piano Terra con soggiorno con cucina a vista, tre camere, due bagni, portico, giardino di proprietà di 218 mq e prato di 658 mq. Classe energetica A3 (valore di progetto). Le immagini e la rappresentazione grafica dei prodotti (immagini, dati tecnici e descrizioni) è realizzata al solo scopo di illustrare il prodotto ed è puramente indicativa. I prodotti possono pertanto differire da quanto rappresentato.
CADORAGO (Como)
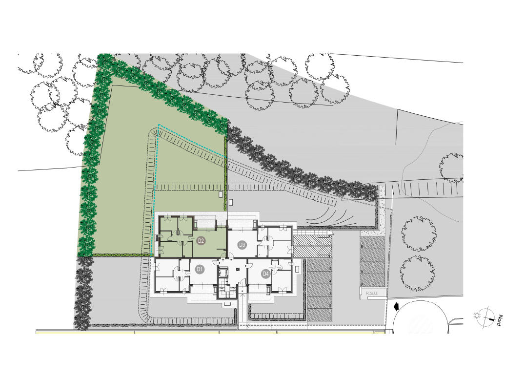
DIRETTAMENTE DAL COSTRUTTORE SENZA MEDIAZIONE. A Cadorago, in una posizione tanto tranquilla quanto verdeggiante, proponiamo degli esclusivi appartamenti dalle ricercate ed eleganti scelte costruttive e architettoniche. Immobile in classe energetica non inferiore ad A3 (valore di progetto indicativo). Le immagini e la rappresentazione grafica dei prodotti (immagini, dati tecnici e descrizioni) è realizzata al solo scopo di illustrare il prodotto ed è puramente indicativa. I prodotti possono pertanto differire da quanto rappresentato.
Bilocale a Piano Terra con soggiorno con cucina a vista, una camera, un bagno, disimpegno, portico e giardino di proprietà di 75 mq Classe energetica A3 (valore di progetto).
Le immagini e la rappresentazione grafica dei prodotti (immagini, dati tecnici e descrizioni) è realizzata al solo scopo di illustrare il prodotto ed è puramente indicativa. I prodotti possono pertanto differire da quanto rappresentato.
Prevista Consegna 31/05/2027
Bilocale a Piano Primo con soggiorno con cucina a vista, una camera, un bagno, disimpegno, portico e terrazzo di 10 mq. Classe energetica A3 (valore di progetto).
Le immagini e la rappresentazione grafica dei prodotti (immagini, dati tecnici e descrizioni) è realizzata al solo scopo di illustrare il prodotto ed è puramente indicativa. I prodotti possono pertanto differire da quanto rappresentato.
Prevista Consegna 31/05/2027
Trilocale a Piano Terra con soggiorno con cucina a vista, due camere, due bagni, portico, giardino di proprietà di 224 mq e prato di 131 mq. Classe energetica A3 (valore di progetto).
Le immagini e la rappresentazione grafica dei prodotti (immagini, dati tecnici e descrizioni) è realizzata al solo scopo di illustrare il prodotto ed è puramente indicativa. I prodotti possono pertanto differire da quanto rappresentato.
Prevista Consegna 31/05/2027
Trilocale a Piano Primo con soggiorno con cucina a vista, due camere, due bagni e terrazzo di 13 mq Classe energetica A3 (valore di progetto).
Le immagini e la rappresentazione grafica dei prodotti (immagini, dati tecnici e descrizioni) è realizzata al solo scopo di illustrare il prodotto ed è puramente indicativa. I prodotti possono pertanto differire da quanto rappresentato.
Prevista Consegna 31/05/2027
Trilocale a Piano Primo con soggiorno con cucina a vista, due camere, due bagni e terrazzo di 13 mq Classe energetica A3 (valore di progetto).
Le immagini e la rappresentazione grafica dei prodotti (immagini, dati tecnici e descrizioni) è realizzata al solo scopo di illustrare il prodotto ed è puramente indicativa. I prodotti possono pertanto differire da quanto rappresentato.
Prevista Consegna 31/05/2027
Trilocale a Piano Terra con soggiorno con cucina a vista, due camere, due bagni, portico e giardino di proprietà di 124 mq e prato di 208 mq. Classe energetica A3 (valore di progetto).
Le immagini e la rappresentazione grafica dei prodotti (immagini, dati tecnici e descrizioni) è realizzata al solo scopo di illustrare il prodotto ed è puramente indicativa. I prodotti possono pertanto differire da quanto rappresentato.
Prevista Consegna 31/05/2027
Quadrilocale a Piano Terra con soggiorno con cucina a vista, tre camere, due bagni, portico, giardino di proprietà di 218 mq e prato di 658 mq. Classe energetica A3 (valore di progetto).
Le immagini e la rappresentazione grafica dei prodotti (immagini, dati tecnici e descrizioni) è realizzata al solo scopo di illustrare il prodotto ed è puramente indicativa. I prodotti possono pertanto differire da quanto rappresentato.
Prevista Consegna 31/05/2027
Quadrilocale a Piano Primo con soggiorno con cucina a vista, tre camere, due bagni e terrazzo di 10 mq Classe energetica A3 (valore di progetto).
Le immagini e la rappresentazione grafica dei prodotti (immagini, dati tecnici e descrizioni) è realizzata al solo scopo di illustrare il prodotto ed è puramente indicativa. I prodotti possono pertanto differire da quanto rappresentato.
Prevista Consegna 31/05/2027