Box 7C
-

FOSCOLO C

UGGIATE CON RONAGO (Como)

Box a Piano Interrato

€ 40.000
29.00 mq
Prevista Consegna 31/07/2027
  • 1
  • ND
Aggiungi a preferiti
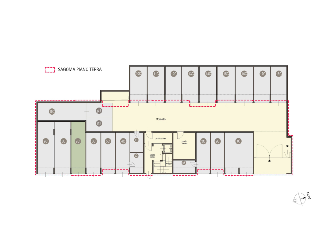
A - Planimetria piano interrato
1 di 2
B - Planimetria box specifico
2 di 2
1 di 5
2 di 5
3 di 5
4 di 5
5 di 5

contattaci







Vorrei ricevere newsletter e comunicazioni commerciali
* campi obbligatori
Se non hai una email, contattaci al numero: 031-35.27.303

FOSCOLO C

UGGIATE CON RONAGO (Como)

All'interno di un nuovo edificio residenziale a basso consumo energetico (classe A3) ubicato in posizione collinare e panoramica a Uggiate con Ronago, distante pochi chilometri dal confine con la Svizzera (Valico di Bizzarone), disponiamo di appartamenti bilocali e trilocali posti sue due piani e di varie metrature.


 


In Progettazione
in vendita
1 di 6

TUTTE LE DISPONIBILITÀ IN FOSCOLO C

Ordina per