LE BRUGHIERE D
BEREGAZZO CON FIGLIARO (Como)
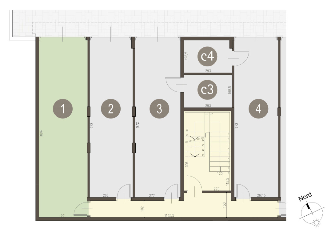
Box a Piano Interrato
BEREGAZZO CON FIGLIARO (Como)
DIRETTAMENTE DAL COSTRUTTORE SENZA MEDIAZIONE. A Beregazzo con Figliaro proponiamo un nuovo complesso residenziale in area serena e verdeggiante, non lontana dal confine svizzero e da Como, a basso consumo energetico e sviluppato su due piani abitabili fuori terra oltre ad un pratico piano interrato adibito a box. Immobile in classe energetica non inferiore ad A3 (valore di progetto indicativo). Disponiamo di bilocali e trilocali Le immagini e la rappresentazione grafica dei prodotti (immagini, dati tecnici e descrizioni) è realizzata al solo scopo di illustrare il prodotto ed è puramente indicativa. I prodotti possono pertanto differire da quanto rappresentato.
Trilocale a piano terra con soggiorno con cucina a vista, due camere, un bagno, disimpegno, portico e giardino di proprietà di 43 mq. Classe energetica A3 (valore di progetto).
Le immagini e la rappresentazione grafica dei prodotti (immagini, dati tecnici e descrizioni) è realizzata al solo scopo di illustrare il prodotto ed è puramente indicativa. I prodotti possono pertanto differire da quanto rappresentato.
Prevista Consegna 31/03/2027
Trilocale a piano terra con soggiorno con cucina a vista, due camere, un bagno, disimpegno, portico e giardino di proprietà di 34 mq. Classe energetica A3 (valore di progetto).
Le immagini e la rappresentazione grafica dei prodotti (immagini, dati tecnici e descrizioni) è realizzata al solo scopo di illustrare il prodotto ed è puramente indicativa. I prodotti possono pertanto differire da quanto rappresentato.
Prevista Consegna 31/03/2027
Trilocale a piano terra con soggiorno con cucina angolo cottura, due camere, due bagni, disimpegno, portico e giardino di proprietà di 76 mq. Classe energetica A3 (valore di progetto).
Le immagini e la rappresentazione grafica dei prodotti (immagini, dati tecnici e descrizioni) è realizzata al solo scopo di illustrare il prodotto ed è puramente indicativa. I prodotti possono pertanto differire da quanto rappresentato.
Prevista Consegna 31/03/2027
Trilocale a piano primo con soggiorno con angolo cottura, due camere, due bagni, disimpegni e terrazzo di 16 mq. Classe energetica A3 (valore di progetto).
Le immagini e la rappresentazione grafica dei prodotti (immagini, dati tecnici e descrizioni) è realizzata al solo scopo di illustrare il prodotto ed è puramente indicativa. I prodotti possono pertanto differire da quanto rappresentato.
Prevista Consegna 31/03/2027
Trilocale a piano primo con soggiorno con cucina a vista, due camere, un bagno, disimpegno e terrazzo di 16 mq. Classe energetica A3 (valore di progetto).
Le immagini e la rappresentazione grafica dei prodotti (immagini, dati tecnici e descrizioni) è realizzata al solo scopo di illustrare il prodotto ed è puramente indicativa. I prodotti possono pertanto differire da quanto rappresentato.
Prevista Consegna 31/03/2027
Trilocale a piano primo con soggiorno con cucina a vista, due camere, un bagno, disimpegno e terrazzo di 16 mq. Classe energetica A3 (valore di progetto).
Le immagini e la rappresentazione grafica dei prodotti (immagini, dati tecnici e descrizioni) è realizzata al solo scopo di illustrare il prodotto ed è puramente indicativa. I prodotti possono pertanto differire da quanto rappresentato.
Prevista Consegna 31/03/2027
Trilocale a piano primo con soggiorno con angolo cottura, due camere, due bagni, disimpegno e terrazzo di 16 mq.. Classe energetica A3 (valore di progetto).
Le immagini e la rappresentazione grafica dei prodotti (immagini, dati tecnici e descrizioni) è realizzata al solo scopo di illustrare il prodotto ed è puramente indicativa. I prodotti possono pertanto differire da quanto rappresentato.
Prevista Consegna 31/03/2027
Trilocale a piano terra con soggiorno con angolo cottura, due camere, due bagni, disimpegno, portico e giardino di proprietà di 180 mq. Classe energetica A3 (valore di progetto).
Le immagini e la rappresentazione grafica dei prodotti (immagini, dati tecnici e descrizioni) è realizzata al solo scopo di illustrare il prodotto ed è puramente indicativa. I prodotti possono pertanto differire da quanto rappresentato.
Prevista Consegna 31/03/2027