LE BRUGHIERE F
BEREGAZZO CON FIGLIARO (Como)
Bilocale a piano terra con soggiorno con cucina a vista, una camera, un bagno, disimpegno, portico e giardino di proprietà di 215 mq. Classe energetica A3 (valore di progetto). Le immagini e la rappresentazione grafica dei prodotti (immagini, dati tecnici e descrizioni) è realizzata al solo scopo di illustrare il prodotto ed è puramente indicativa. I prodotti possono pertanto differire da quanto rappresentato.
BEREGAZZO CON FIGLIARO (Como)
DIRETTAMENTE DAL COSTRUTTORE SENZA MEDIAZIONE. A Beregazzo con Figliaro proponiamo un nuovo complesso residenziale in area serena e verdeggiante, non lontana dal confine svizzero e da Como, a basso consumo energetico e sviluppato su due piani abitabili fuori terra oltre ad un pratico piano interrato adibito a box. Immobile in classe energetica non inferiore ad A3 (valore di progetto indicativo). Disponiamo di bilocali e trilocali Le immagini e la rappresentazione grafica dei prodotti (immagini, dati tecnici e descrizioni) è realizzata al solo scopo di illustrare il prodotto ed è puramente indicativa. I prodotti possono pertanto differire da quanto rappresentato.
Bilocale a piano terra con soggiorno,cucina, una camera, un bagno, disimpegno, portico e giardino di proprietà di 143 mq. Classe energetica A3 (valore di progetto).
Le immagini e la rappresentazione grafica dei prodotti (immagini, dati tecnici e descrizioni) è realizzata al solo scopo di illustrare il prodotto ed è puramente indicativa. I prodotti possono pertanto differire da quanto rappresentato.
Prevista Consegna 31/07/2027
Bilocale a piano terra con soggiorno,cucina, una camera, un bagno, disimpegno, portico e giardino di proprietà di 135 mq. Classe energetica A3 (valore di progetto).
Le immagini e la rappresentazione grafica dei prodotti (immagini, dati tecnici e descrizioni) è realizzata al solo scopo di illustrare il prodotto ed è puramente indicativa. I prodotti possono pertanto differire da quanto rappresentato.
Prevista Consegna 31/07/2027
Bilocale a piano terra con soggiorno con cucina a vista, una camera, un bagno, disimpegno, portico e giardino di proprietà di 207 mq. Classe energetica A3 (valore di progetto).
Le immagini e la rappresentazione grafica dei prodotti (immagini, dati tecnici e descrizioni) è realizzata al solo scopo di illustrare il prodotto ed è puramente indicativa. I prodotti possono pertanto differire da quanto rappresentato.
Prevista Consegna 31/07/2027
Bilocale a piano terra con soggiorno con cucina a vista, una camera, un bagno, disimpegno, portico e giardino di proprietà di 215 mq. Classe energetica A3 (valore di progetto).
Le immagini e la rappresentazione grafica dei prodotti (immagini, dati tecnici e descrizioni) è realizzata al solo scopo di illustrare il prodotto ed è puramente indicativa. I prodotti possono pertanto differire da quanto rappresentato.
Prevista Consegna 31/07/2027
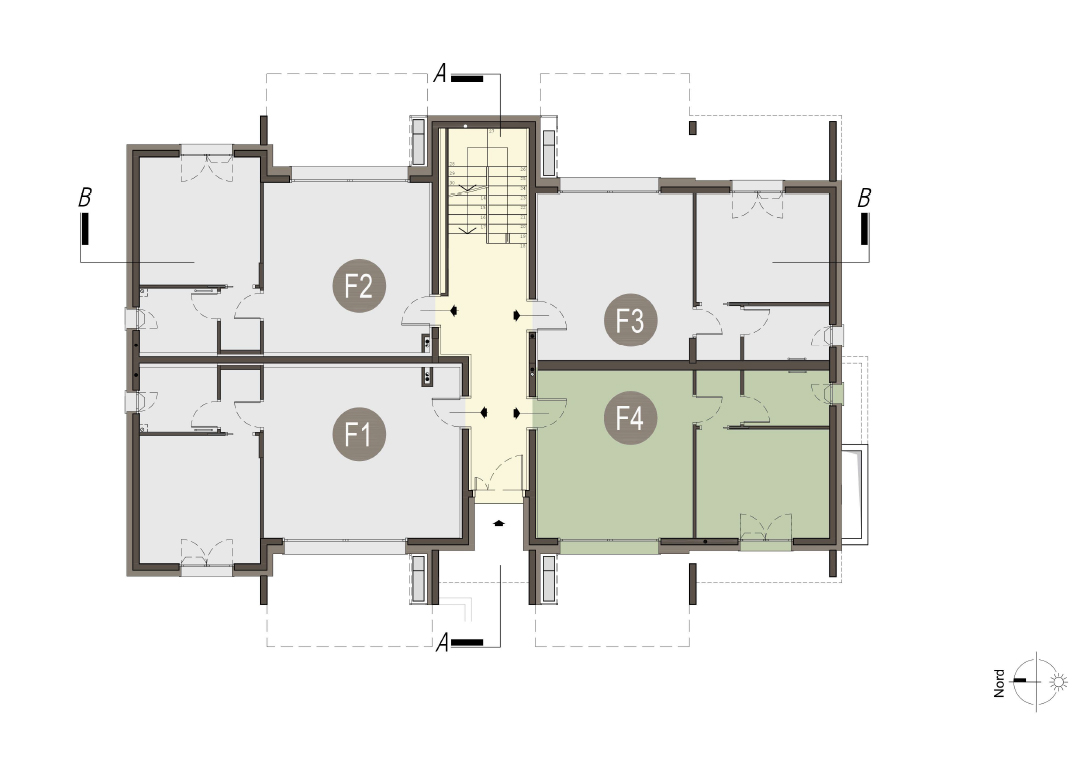
Bilocale a piano primo con soggiorno con cucina a vista, una camera, un bagno, disimpegno e terrazzo di 13 mq. Classe energetica A3 (valore di progetto).
Le immagini e la rappresentazione grafica dei prodotti (immagini, dati tecnici e descrizioni) è realizzata al solo scopo di illustrare il prodotto ed è puramente indicativa. I prodotti possono pertanto differire da quanto rappresentato.
Prevista Consegna 31/07/2027
Bilocale a piano primo con soggiorno con cucina a vista, una camera, un bagno, disimpegno e terrazzo di 13 mq. Classe energetica A3 (valore di progetto).
Le immagini e la rappresentazione grafica dei prodotti (immagini, dati tecnici e descrizioni) è realizzata al solo scopo di illustrare il prodotto ed è puramente indicativa. I prodotti possono pertanto differire da quanto rappresentato.
Prevista Consegna 31/07/2027
Trilocale a piano primo con soggiorno con cucina a vista, una camera, un bagno, disimpegno e terrazzo di 10 mq. Classe energetica A3 (valore di progetto).
Le immagini e la rappresentazione grafica dei prodotti (immagini, dati tecnici e descrizioni) è realizzata al solo scopo di illustrare il prodotto ed è puramente indicativa. I prodotti possono pertanto differire da quanto rappresentato.
Prevista Consegna 31/07/2027
Trilocale a piano primo con soggiorno con cucina a vista, due camere, un bagno, disimpegno e terrazzo di 12 mq. Classe energetica A3 (valore di progetto).
Le immagini e la rappresentazione grafica dei prodotti (immagini, dati tecnici e descrizioni) è realizzata al solo scopo di illustrare il prodotto ed è puramente indicativa. I prodotti possono pertanto differire da quanto rappresentato.
Prevista Consegna 31/07/2027
Quadrilocale a piano terra con soggiorno,cucina, tre camere, due bagni, disimpegno, portico e giardino di proprietà di 422 mq. Classe energetica A3 (valore di progetto).
Le immagini e la rappresentazione grafica dei prodotti (immagini, dati tecnici e descrizioni) è realizzata al solo scopo di illustrare il prodotto ed è puramente indicativa. I prodotti possono pertanto differire da quanto rappresentato.
Prevista Consegna 31/07/2027