GIOVANNI XXIII E
BIZZARONE (Como)
Trilocale a Piano Primo con soggiorno con angolo cottura, disimpegno, due camere, due bagni e terrazzo di 12 mq. Classe energetica A3 valore di progetto.
BIZZARONE (Como)
A Bizzarone, a poca distanza dal confine con la Svizzera, in un contesto verdeggiante, proponiamo un nuovo complesso residenziale, a basso consumo energetico sviluppato su tre piani abitabili fuori terra oltre ad un piano interrato. Immobile in classe energetica non inferiore ad A3 (valore di progetto indicativo). Per chi ha la necessità di muoversi senza auto verso le grandi città (Como, Varese, Milano) la zona è particolarmente servita dal passaggio di mezzi pubblici. La zona è altresì comoda per chi si muove spesso in auto verso la Svizzera. Nei dintorni sono presenti attività commerciali quali centri commerciali, centro sportivo, ristoranti, bar ed attività di servizio quali farmacie, posta, scuole etc. Proponiamo Bilocali, Trilocali e Quadrilocali con portico e giardino di proprietà al piano terra, oppure con terrazzo per quelli ai piani superiori. Al piano interrato sono presenti i box pertinenziali.
Bilocale a Piano Terra con soggiorno con cucina a vista, disimpegno, una camera, un bagno, portico e giardino di proprietò di 68 mq. Classe energetica A3 valore di progetto.
Prevista Consegna 31/05/2027
Bilocale a Piano Terra con soggiorno con cucina a vista, disimpegno, una camera, un bagno, portico e giardino di proprietò di 74 mq. Classe energetica A3 valore di progetto.
Prevista Consegna 31/05/2027
Bilocale a Piano Terra con soggiorno con cucina a vista, disimpegno, una camera, un bagno, portico e giardino di proprietò di 97 mq. Classe energetica A3 valore di progetto.
Prevista Consegna 31/05/2027
Bilocale a Piano Terra con soggiorno con cucina a vista, disimpegno, una camera, un bagno, portico e giardino di proprietò di 91 mq. Classe energetica A3 valore di progetto.
Prevista Consegna 31/05/2027
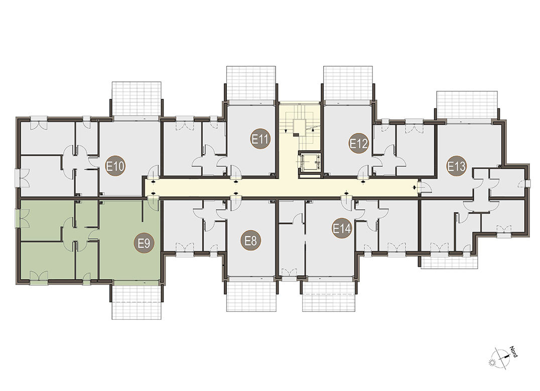
Bilocale a Piano Primo con soggiorno con cucina a vista, disimpegno, una camera, un bagno e terrazzo di 11 mq. Classe energetica A3 valore di progetto.
Prevista Consegna 31/05/2027
Bilocale a Piano Secondo con soggiorno con cucina a vista, disimpegno, una camera, un bagno e terrazzo di 12 mq. Classe energetica A3 valore di progetto.
Prevista Consegna 31/05/2027
Bilocale a Piano Secondo con soggiorno con cucina a vista, disimpegno, una camera, un bagno e terrazzo di 12 mq. Classe energetica A3 valore di progetto.
Prevista Consegna 31/05/2027
Bilocale a Piano Primo con soggiorno con cucina a vista, disimpegno, una camera, un bagno e terrazzo di 12 mq. Classe energetica A3 valore di progetto.
Prevista Consegna 31/05/2027
Bilocale a Piano Primo con soggiorno con cucina a vista, disimpegno, una camera, un bagno e terrazzo di 12 mq. Classe energetica A3 valore di progetto.
Prevista Consegna 31/05/2027
Bilocale a Piano Secondo con soggiorno con cucina a vista, disimpegno, una camera, un bagno e terrazzo di 11 mq. Classe energetica A3 valore di progetto.
Prevista Consegna 31/05/2027
Trilocale a Piano Terra con soggiorno con angolo cottura, disimpegno, due camere, due bagni, portico e giardino di proprietà di 93 mq. Classe energetica A3 valore di progetto.
Prevista Consegna 31/05/2027
Trilocale a Piano Secondo con soggiorno con cucina a vista, disimpegno, due camere, due bagni e terrazzo di 12 mq. Classe energetica A3 valore di progetto.
Prevista Consegna 31/05/2027
Trilocale a Piano Secondo con soggiorno con angolo cottura, disimpegno, due camere, due bagni e due terrazzi per un totale di 17 mq. Classe energetica A3 valore di progetto.
Prevista Consegna 31/05/2027
Trilocale a Piano Secondo con soggiorno con angolo cottura, disimpegno, due camere, due bagni e terrazzo di 12 mq. Classe energetica A3 valore di progetto.
Prevista Consegna 31/05/2027
Trilocale a Piano Secondo con soggiorno con angolo cottura, disimpegno, due camere, due bagni e terrazzo di 12 mq. Classe energetica A3 valore di progetto.
Prevista Consegna 31/05/2027
Trilocale a Piano Primo con soggiorno con cucina a vista, disimpegno, due camere, due bagni e terrazzo di 12 mq. Classe energetica A3 valore di progetto
Prevista Consegna 31/05/2027
Trilocale a Piano Primo con soggiorno con angolo cottura, disimpegno, due camere, due bagni e due terrazzi per un totale di 17 mq. Classe energetica A3 valore di progetto.
Prevista Consegna 31/05/2027
Trilocale a Piano Primo con soggiorno con angolo cottura, disimpegno, due camere, due bagni e terrazzo di 12 mq. Classe energetica A3 valore di progetto.
Prevista Consegna 31/05/2027
Trilocale a Piano Primo con soggiorno con angolo cottura, disimpegno, due camere, due bagni e terrazzo di 12 mq. Classe energetica A3 valore di progetto.
Prevista Consegna 31/05/2027
Trilocale a Piano Terra con soggiorno con angolo cottura, disimpegno, due camere, due bagni, portico e giardino di proprietà di 295 mq. Classe energetica A3 valore di progetto.
Prevista Consegna 31/05/2027
Trilocale a Piano Terra con soggiorno con angolo cottura, disimpegno, due camere, due bagni, portico e giardino di proprietà di 112 mq. Classe energetica A3 valore di progetto.
Prevista Consegna 31/05/2027
Quadrilocale a Piano Secondo con soggiorno con angolo cottura, disimpegno, ripostiglio, tre camere, due bagni e terrazzo di 28 mq. Classe energetica A3 valore di progetto.
Prevista Consegna 31/05/2027
Quadrilocale a Piano Secondo con soggiorno con angolo cottura, disimpegno, ripostiglio, tre camere, cabina armadio, due bagni e terrazzo di 28 mq. Classe energetica A3 valore di progetto.
Prevista Consegna 31/05/2027