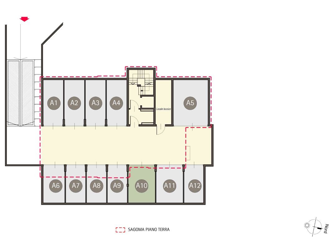
Box 10A
-

I SALICI

APPIANO GENTILE (Como)

Box a Piano Interrato

€ 30.000
23.10 mq
Prevista Consegna 30/09/2027
  • 1
  • ND
Aggiungi a preferiti
A - Planimetria Piano Interrato
1 di 2
B - Planimetria Box Specifico
2 di 2
1 di 5
2 di 5
3 di 5
4 di 5
5 di 5

contattaci







Vorrei ricevere newsletter e comunicazioni commerciali
* campi obbligatori
Se non hai una email, contattaci al numero: 031-35.27.303

I SALICI

APPIANO GENTILE (Como)

DIRETTAMENTE DAL COSTRUTTORE SENZA MEDIAZIONE. Ad Appiano Gentile proponiamo un nuovo complesso residenziale in area serena e verdeggiante, non lontana dal confine svizzero e da Como, a basso consumo energetico e sviluppato su tre piani abitabili fuori terra oltre ad un pratico piano interrato adibito a box. Immobile in classe energetica non inferiore ad A3 (valore di progetto indicativo). Disponiamo di varia gamma di tipologie di appartamenti trilocali e quadrilocali con portico e giardino di proprietà relativi agli appartamenti piano terra e soleggiato balcone in dotazione agli appartamenti ai piani superiori. Le immagini e la rappresentazione grafica dei prodotti (immagini, dati tecnici e descrizioni) è realizzata al solo scopo di illustrare il prodotto ed è puramente indicativa. I prodotti possono pertanto differire da quanto rappresentato.


 


In Costruzione
in vendita
1 di 5

TUTTE LE DISPONIBILITÀ IN I SALICI

Ordina per