PARCO A-B
BREGNANO (Como)
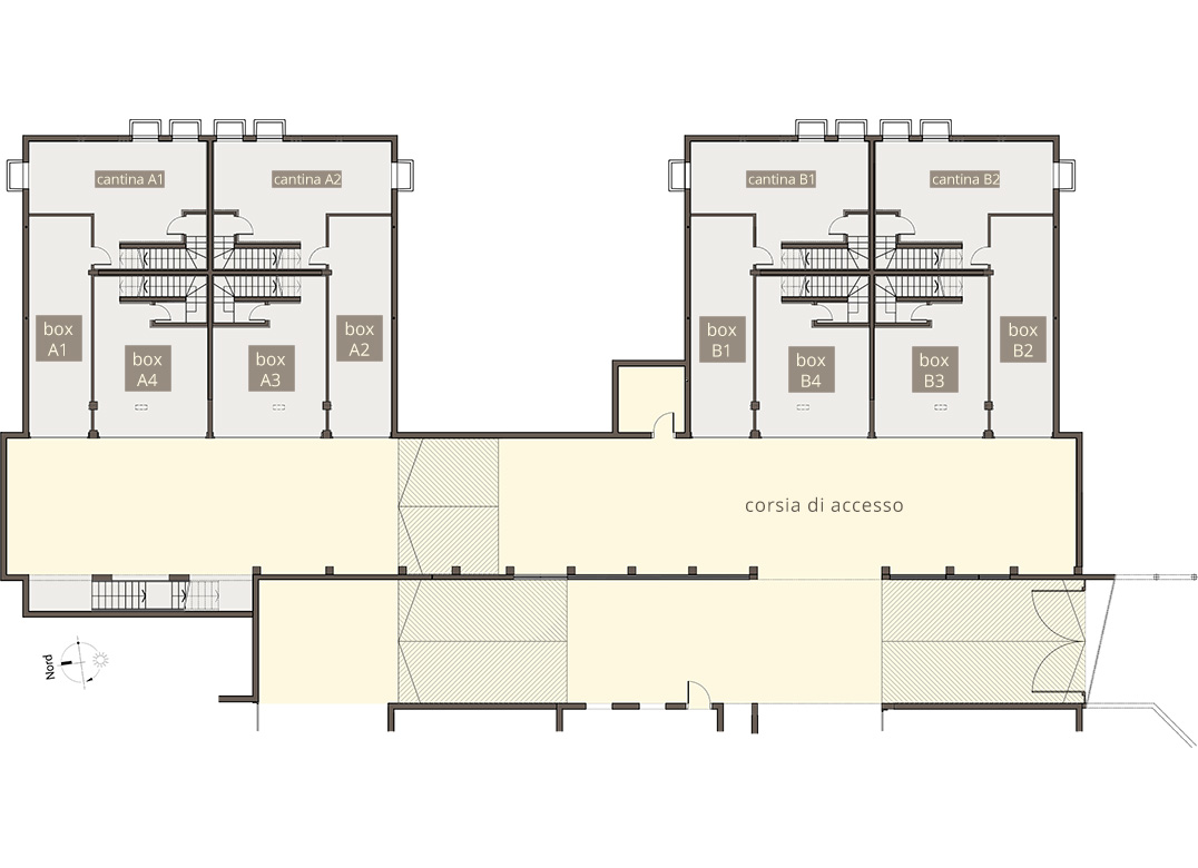
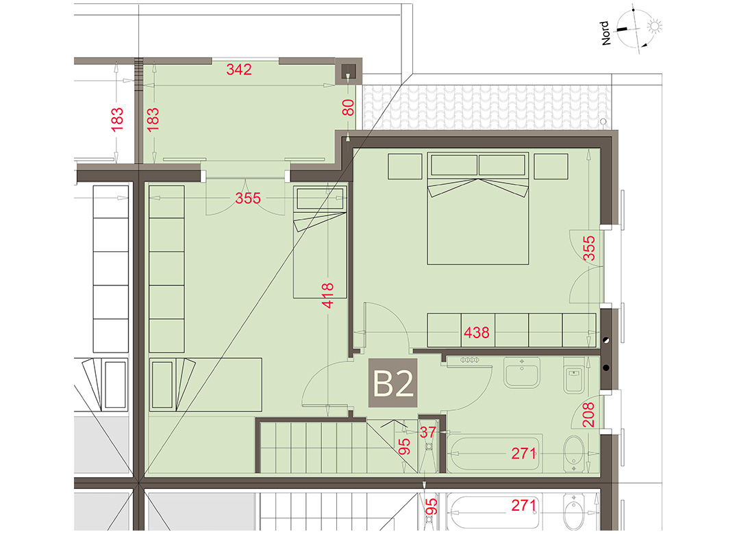
Villetta a schiera di testa con giardino di proprietà con annesso box doppio e cantina a piano interrato. Classe energetica B, prestazione energetica 64,1 KWh/mqannuo.
BREGNANO (Como)
Posto in zona tranquilla e ricca di verde. Situato a poca distanza dalla S.S.dei Giovi, e nelle vicinanze della stazione FNM di Cadorago e dall'ingresso autostradale della A9. Proponiamo delle bellissime soluzioni realizzate con i piu' innovativi sistemi di risparmio energetico.
Villetta a schiera di testa con giardino di proprietà con annesso box doppio e cantina a piano interrato. Classe energetica B, prestazione energetica 64,1 KWh/mqannuo.
Pronta Consegna