IRIS CD
ROVELLASCA (Como)
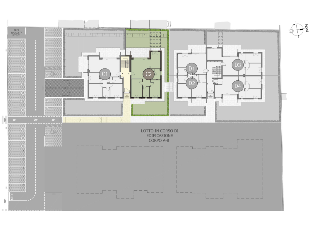
Trilocale a Piano Terra composto da soggiorno, cucina, due camere, due bagni, portico e giardino di proprietà di mq. 155,38. Classe energetica non inferiore ad A3 (valore di progetto indicativo). Prestazione energetica in fase di rilascio.
ROVELLASCA (Como)
Nuovo complesso residenziale a Rovellasca, in una tranquilla zona circondata da ampie aree verdi e in posizione strategica. Gli appartamenti distano infatti pochi metri dalla stazione FNM di Rovellasca, nonchè in vicinanza dell'autostrada A9 di Turate e dal centro di Saronno. Classe energetica non inferiore ad A3 (certificato in fase di rilascio).
Trilocale a Piano Terra composto da soggiorno, cucina, due camere, due bagni, portico e giardino di proprietà di mq. 155,38. Classe energetica non inferiore ad A3 (valore di progetto indicativo). Prestazione energetica in fase di rilascio.
Prevista Consegna 30/04/2026
Trilocale a Piano Terra composto da soggiorno, cucina, due camere, due bagni e portico. Giardino di proprietà di mq. 155,93. Classe energetica non inferiore ad A3 (valore di progetto indicativo). Prestazione energetica in fase di rilascio.
Prevista Consegna 30/04/2026
Trilocale a Piano Terra composto da soggiorno, cucina, due camere, due bagni e portico. Giardino di proprietà di mq. 158,70. Classe energetica non inferiore ad A3 (valore di progetto indicativo). Prestazione energetica in fase di rilascio.
Prevista Consegna 30/04/2026
Trilocale a Piano Primo composto da soggiorno-cottura, due camere, due bagni, disimpegno e balcone di mq. 12,98. Classe energetica non inferiore ad A3 (valore di progetto indicativo). Prestazione energetica in fase di rilascio.
Prevista Consegna 30/04/2026
Quadrilocale a Piano Primo composto da soggiorno, cucina a vista, tre camere, due bagni e due terrazzi per un totale di 28,93mq. Classe energetica non inferiore ad A3 (valore di progetto indicativo). Prestazione energetica in fase di rilascio.
Prevista Consegna 30/04/2026
Quadrilocale a Piano Primo composto da soggiorno, cucina, due camere, studio, due bagni e due terrazzi per un totale di 24,77mq. Classe energetica non inferiore ad A3 (valore di progetto indicativo). Prestazione energetica in fase di rilascio.
Prevista Consegna 30/04/2026
Quadrilocale a Piano Terra composto da soggiorno-cottura, tre camere, due bagni, portici e giardino di proprietà di mq. 260,79. Classe energetica non inferiore ad A3 (valore di progetto indicativo). Prestazione energetica in fase di rilascio.
Prevista Consegna 30/04/2026