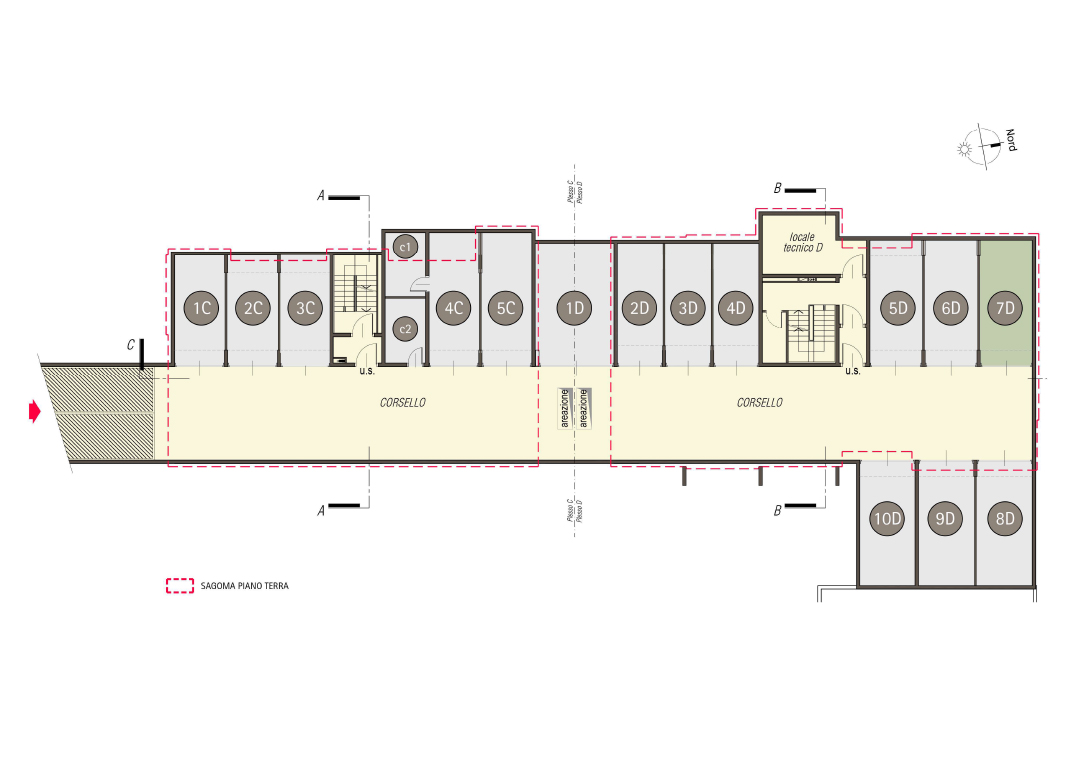
Box 7D
-

IRIS CD

ROVELLASCA (Como)

Box a Piano Interrato.

€ 30.000
25.38 mq
  • 1
  • ND
Aggiungi a preferiti
A - Planimetria Piano Interrato
1 di 2
B - Planimetria Box Specifico
2 di 2
1 di 5
2 di 5
3 di 5
4 di 5
5 di 5

contattaci







Vorrei ricevere newsletter e comunicazioni commerciali
* campi obbligatori
Se non hai una email, contattaci al numero: 031-35.27.303

IRIS CD

ROVELLASCA (Como)

DIRETTAMENTE DAL COSTRUTTORE SENZA MEDIAZIONE. Nuovo complesso residenziale a Rovellasca, in una tranquilla zona circondata da ampie aree verdi e in posizione strategica. Gli appartamenti distano infatti pochi metri dalla stazione FNM di Rovellasca, nonchè in vicinanza dell'autostrada A9 di Turate e dal centro di Saronno. Classe energetica non inferiore ad A3 (certificato in fase di rilascio).


 


In Costruzione
in vendita
1 di 14

TUTTE LE DISPONIBILITÀ IN IRIS CD

Ordina per