QUASIMODO A
GUANZATE (Como)
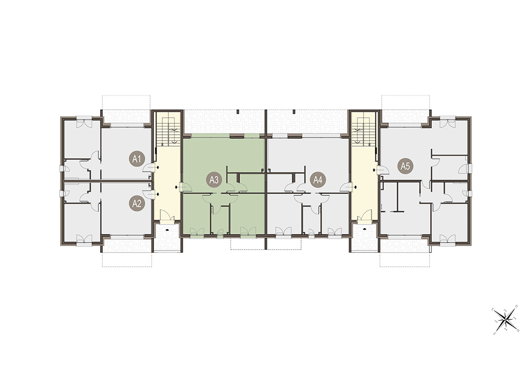
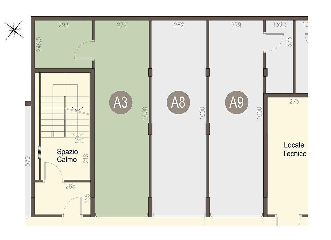
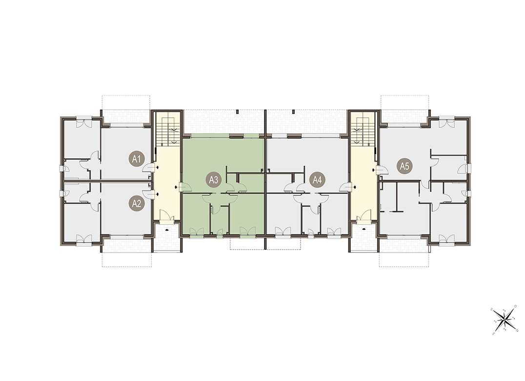
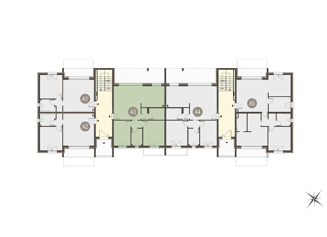
Trilocale a piano terra composto da soggiorno con cucina, due camere, disimpegni, 2 bagni, portico, giardino di proprietà di 135 mq, cantina e box doppio in lunghezza a piano interrato. Impianto fotovoltaico privato da 2 Kw. Classe energetica A3 (valore di progetto).
GUANZATE (Como)
DIRETTAMENTE DAL COSTRUTTORE SENZA MEDIAZIONE. In zona residenziale immersa nel verde e in prossimita' del centro paese, disponiamo di Bilocali, Trilocali e Qudrilocali con giardini, terrazzi e box.
Trilocale a piano terra composto da soggiorno con cucina, due camere, disimpegni, 2 bagni, portico, giardino di proprietà di 135 mq, cantina e box doppio in lunghezza a piano interrato. Impianto fotovoltaico privato da 2 Kw. Classe energetica A3 (valore di progetto).
Prevista Consegna 30/06/2026
Trilocale a piano terra composto da soggiorno con cucina, due camere, disimpegni, 2 bagni, portico, giardino di proprietà di 135 mq, cantina e box doppio in lunghezza a piano interrato. Impianto fotovoltaico privato da 2 Kw. Classe energetica A3 (valore di progetto).
Prevista Consegna 30/06/2026
Trilocale a piano primo composto da soggiorno con cucina, due camere, disimpegni, due bagni, terrazzo di 26 mq e box doppio in lunghezza a piano interrato. Impianto fotovoltaico privato da 2 Kw. Classe energetica A3 (valore di progetto).
Prevista Consegna 30/06/2026
Trilocale a piano primo composto da soggiorno con cucina, due camere, disimpegni, due bagno, terrazzo di 26 mq, cantina e box doppio in lunghezza a piano interrato. Impianto fotovoltaico privato da 2 Kw. Classe energetica A3(valore di progetto).
Prevista Consegna 30/06/2026
Quadrilocale a piano terra composto da soggiorno con cucina, tre camere, disimpegni, 2 bagni, 2 portici, giardino di proprietà di 210 mq, cantina e box doppio in lunghezza a piano interrato. Impianto fotovoltaico privato da 2 Kw. Classe energetica A3 (valore indicativo di progetto).
Prevista Consegna 30/06/2026