QUASIMODO A
GUANZATE (Como)
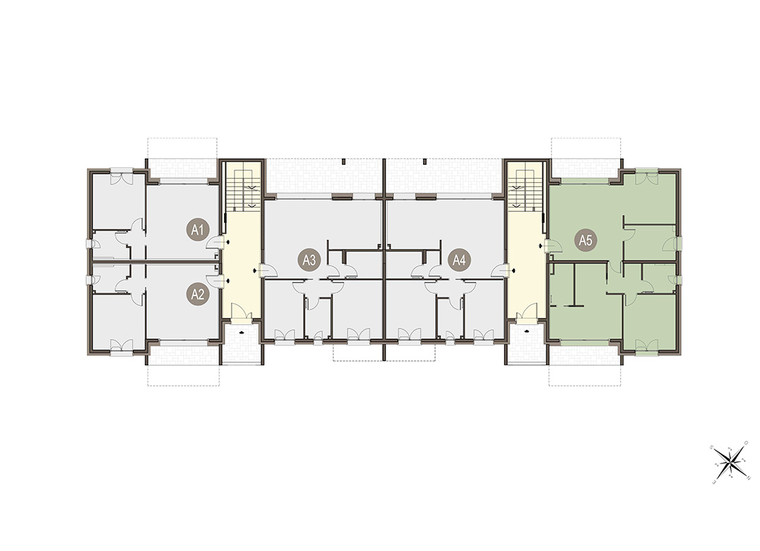
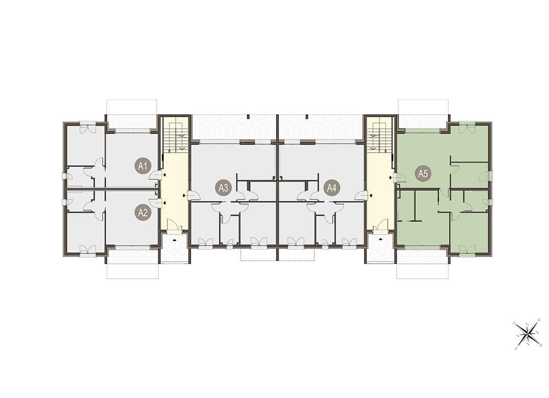
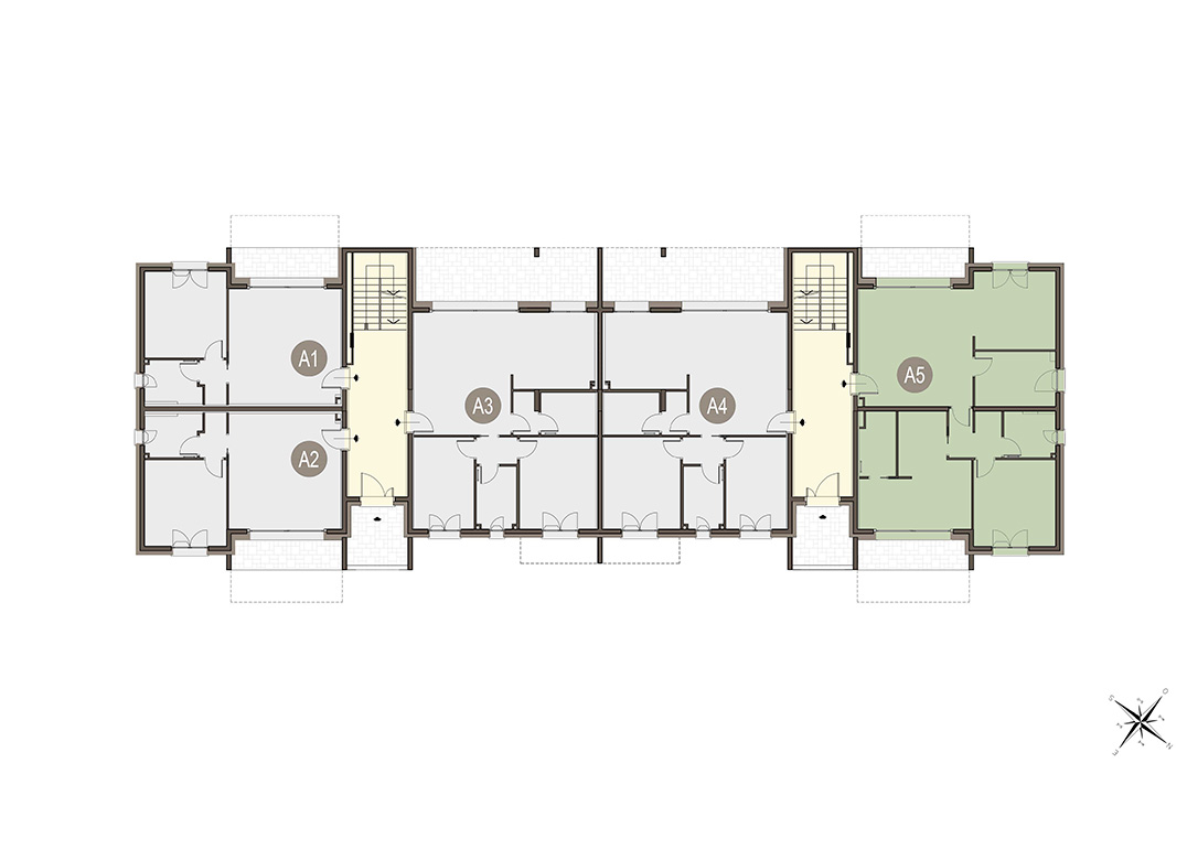
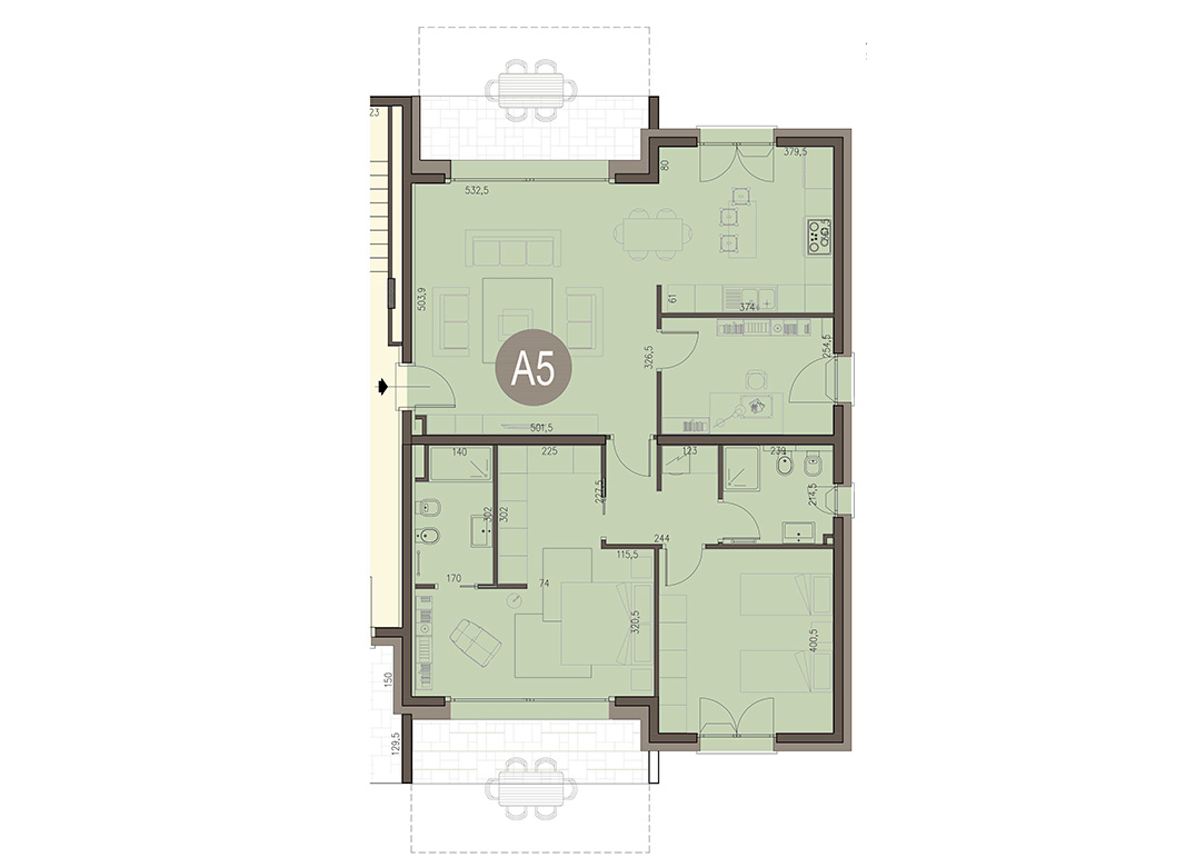
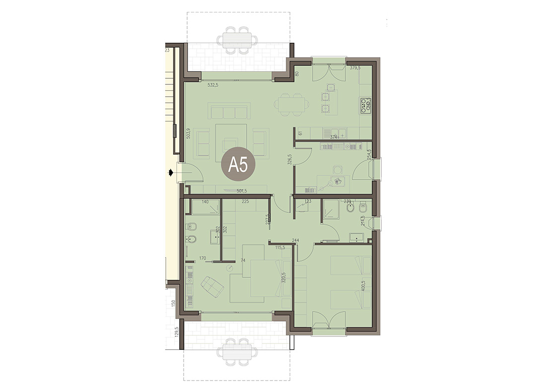
Quadrilocale a piano terra composto da soggiorno con cucina, tre camere, disimpegni, 2 bagni, 2 portici, giardino di proprietà di 210 mq, cantina e box doppio in lunghezza a piano interrato. Classe energetica A (valore indicativo di progetto).
GUANZATE (Como)
In zona residenziale immersa nel verde e in prossimita' del centro paese, disponiamo di Bilocali, Trilocali e Qudrilocali con giardini, terrazzi e box.
Bilocale a piano terra composto da cucina/soggiorno, camera, disimpegno, bagno, portico, giardino di proprietà di 75 mq e box a piano interrato Classe energetica A (valore indicativo di progetto).
Prevista Consegna 31/05/2026
Bilocale a piano terra composto da cucina/soggiorno, camera, disimpegno, bagno, portico, giardino di proprietà di 75 mq e box a piano interrato. Classe energetica A (valore indicativo di progetto).
Prevista Consegna 31/05/2026
Trilocale a piano terra composto da soggiorno con cucina, due camere, disimpegni, 2 bagni, portico, giardino di proprietà di 135 mq, cantina e box doppio in lunghezza a piano interrato. Classe energetica A (valore indicativo di progetto).
Prevista Consegna 31/05/2026
Trilocale a piano terra composto da soggiorno con cucina, due camere, disimpegni, 2 bagni, portico, giardino di proprietà di 135 mq, cantina e box doppio in lunghezza a piano interrato. Classe energetica A (valore indicativo di progetto).
Prevista Consegna 31/05/2026
Trilocale a piano primo composto da soggiorno/cucina, due camere, disimpegno, un bagno, balcone di 20 mq e box a piano interrato. Classe energetica A (valore indicativo di progetto).
Prevista Consegna 31/05/2026
Trilocale a piano primo composto da soggiorno con cucina, due camere, disimpegni, due bagni, terrazzo di 26 mq e box doppio in lunghezza a piano interrato. Classe energetica A (valore indicativo di progetto).
Prevista Consegna 31/05/2026
Trilocale a piano primo composto da soggiorno con cucina, due camere, disimpegni, due bagno, terrazzo di 26 mq, cantina e box doppio in lunghezza a piano interrato. Classe energetica A (valore indicativo di progetto).
Prevista Consegna 31/05/2026
Quadrilocale a piano terra composto da soggiorno con cucina, tre camere, disimpegni, 2 bagni, 2 portici, giardino di proprietà di 210 mq, cantina e box doppio in lunghezza a piano interrato. Classe energetica A (valore indicativo di progetto).
Prevista Consegna 31/05/2026