Box 5A
-

I PRATI AB

COLVERDE (Como)

Box a piano interrato

€ 30.000
21.86 mq
Prevista Consegna 31/12/2026
  • 1
  • ND
Aggiungi a preferiti
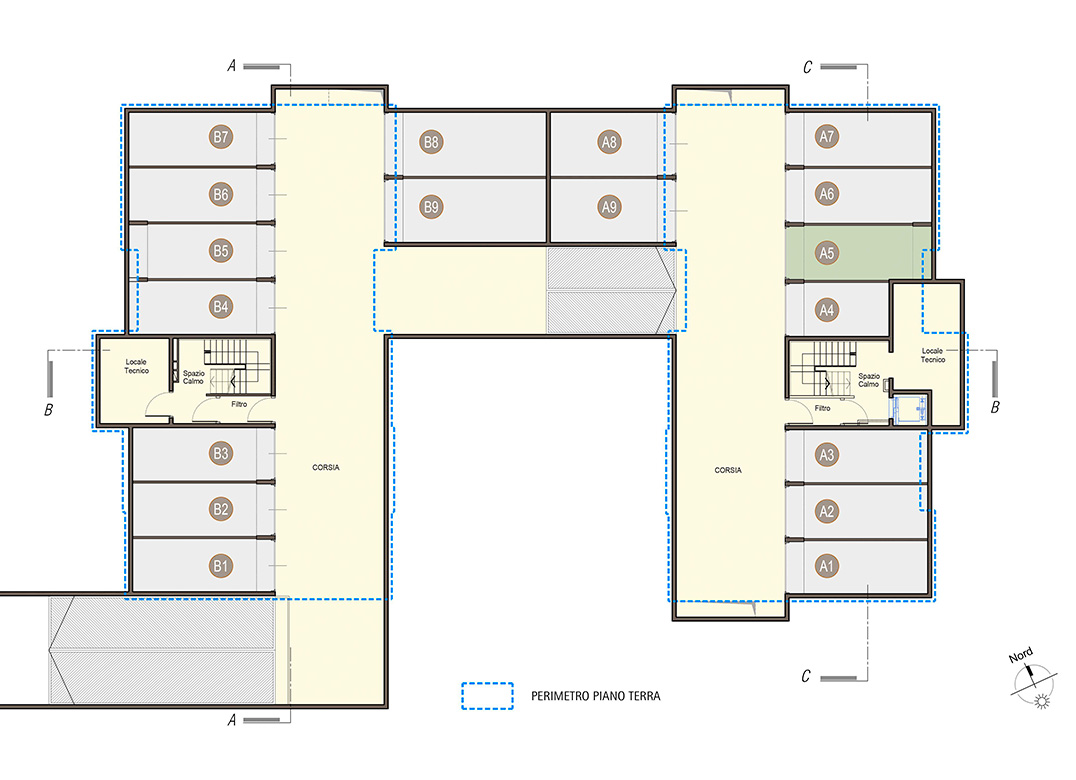
Planimetria Piano Interrato
1 di 2
Planimtria Box
2 di 2
1 di 3
2 di 3
3 di 3

contattaci







Vorrei ricevere newsletter e comunicazioni commerciali
* campi obbligatori
Se non hai una email, contattaci al numero: 031-35.27.303

I PRATI AB

COLVERDE (Como)

A Colverde, proponiamo edifici residenziali a basso consumo energetico ubicati in posizione di facile accesso alle principali attivita' commerciali e ai vari servizi collettivi quali, asilo nido, scuole elementari, medie e superiori, farmacie e posta. Proponiamo appartamenti di varia metratura, Bilo-Trilo e Quadrilocali con portico e giardino di proprietà per quelli al piano terra e con terrazzo per i piani superiori. Al piano interrato sono presenti i box. Immobile in classe energetica non inferiore ad A3 (valore di progetto indicativo).


 


In Costruzione
in vendita
1 di 3

TUTTE LE DISPONIBILITÀ IN I PRATI AB

Ordina per