LICINIUM
ERBA (Como)
Quadrilocale a Piano Secondo con soggiorno con angolo cottura, tre camere, due bagni e terrazzo di 12 mq. Classe energetica A3 (valore di progetto). Le immagini e la rappresentazione grafica dei prodotti (immagini, dati tecnici e descrizioni) è realizzata al solo scopo di illustrare il prodotto ed è puramente indicativa. I prodotti possono pertanto differire da quanto rappresentato.
ERBA (Como)
Ad Erba, proponiamo un nuovo complesso residenziale in zona verdeggiante, a basso consumo energetico, sviluppato su tre piani abitabili fuori terra oltre ad un pratico piano interrato adibito a box. Immobile in classe energetica non inferiore ad A3 (valore di progetto indicativo). Disponiamo di varia gamma di tipologie di appartamenti bilocali, trilocali e quadrilocali con portico e giardino di proprietà relativi agli appartamenti piano terra e soleggiato balcone in dotazione agli appartamenti ai piani superiori.
Bilocale a Piano Terra con soggiorno con cucina a vista, una camera, un bagno, disimpegno, ripostiglio, portico e giardino di proprietà di 189 mq. Classe energetica A3 (valore di progetto). Le immagini e la rappresentazione grafica dei prodotti (immagini, dati tecnici e descrizioni) è realizzata al solo scopo di illustrare il prodotto ed è puramente indicativa. I prodotti possono pertanto differire da quanto rappresentato.
Prevista Consegna 30/09/2027
Bilocale a Piano Terra con soggiorno con cucina a vista, una camera, un bagno, disimpegno, portico e giardino di proprietà di 121 mq. Classe energetica A3 (valore di progetto). Le immagini e la rappresentazione grafica dei prodotti (immagini, dati tecnici e descrizioni) è realizzata al solo scopo di illustrare il prodotto ed è puramente indicativa. I prodotti possono pertanto differire da quanto rappresentato.
Prevista Consegna 30/09/2027
Bilocale a Piano Primo con soggiorno con angolo cottura, una camera, un bagno, disimpegno e terrazzo di 13 mq. Classe energetica A3 (valore di progetto). Le immagini e la rappresentazione grafica dei prodotti (immagini, dati tecnici e descrizioni) è realizzata al solo scopo di illustrare il prodotto ed è puramente indicativa. I prodotti possono pertanto differire da quanto rappresentato.
Prevista Consegna 30/09/2027
Bilocale a Piano Primo con soggiorno con cucina a vista, una camera, un bagno, disimpegno, ripostiglio e terrazzo di 13 mq. Classe energetica A3 (valore di progetto). Le immagini e la rappresentazione grafica dei prodotti (immagini, dati tecnici e descrizioni) è realizzata al solo scopo di illustrare il prodotto ed è puramente indicativa. I prodotti possono pertanto differire da quanto rappresentato.
Prevista Consegna 30/09/2027
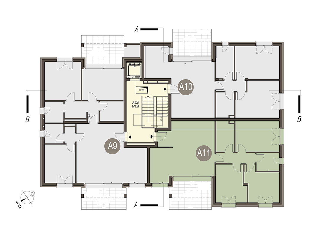
Trilocale a Piano Secondo con soggiorno con angolo cottura, due camere, due bagni e terrazzo di 12 mq. Classe energetica A3 (valore di progetto). Le immagini e la rappresentazione grafica dei prodotti (immagini, dati tecnici e descrizioni) è realizzata al solo scopo di illustrare il prodotto ed è puramente indicativa. I prodotti possono pertanto differire da quanto rappresentato.
Prevista Consegna 30/09/2027
Trilocale a Piano Primo con soggiorno con angolo cottura, due camere, due bagni e terrazzo di 12 mq. Classe energetica A3 (valore di progetto). Le immagini e la rappresentazione grafica dei prodotti (immagini, dati tecnici e descrizioni) è realizzata al solo scopo di illustrare il prodotto ed è puramente indicativa. I prodotti possono pertanto differire da quanto rappresentato.
Prevista Consegna 30/09/2027
Trilocale a Piano Terra con soggiorno con angolo cottura, due camere, due bagni, portico e giardino di proprietà di 180 mq. Classe energetica A3 (valore di progetto). Le immagini e la rappresentazione grafica dei prodotti (immagini, dati tecnici e descrizioni) è realizzata al solo scopo di illustrare il prodotto ed è puramente indicativa. I prodotti possono pertanto differire da quanto rappresentato.
Prevista Consegna 30/09/2027
Quadrilocale a Piano Terra con soggiorno con angolo cottura, tre camere, due bagni, portico e giardino di proprietà di 223 mq. Classe energetica A3 (valore di progetto). Le immagini e la rappresentazione grafica dei prodotti (immagini, dati tecnici e descrizioni) è realizzata al solo scopo di illustrare il prodotto ed è puramente indicativa. I prodotti possono pertanto differire da quanto rappresentato.
Prevista Consegna 30/09/2027
Quadrilocale a Piano Primo con soggiorno con angolo cottura, tre camere, due bagni e terrazzo di 12 mq. Classe energetica A3 (valore di progetto). Le immagini e la rappresentazione grafica dei prodotti (immagini, dati tecnici e descrizioni) è realizzata al solo scopo di illustrare il prodotto ed è puramente indicativa. I prodotti possono pertanto differire da quanto rappresentato.
Prevista Consegna 30/09/2027
Quadrilocale a Piano Secondo con soggiorno con angolo cottura, due camere, uno studio, due bagni, due disimpegni, un ripostiglio e due terrazzi per un totale di 23 mq. Classe energetica A3 (valore di progetto). Le immagini e la rappresentazione grafica dei prodotti (immagini, dati tecnici e descrizioni) è realizzata al solo scopo di illustrare il prodotto ed è puramente indicativa. I prodotti possono pertanto differire da quanto rappresentato.
Prevista Consegna 30/09/2027
Quadrilocale a Piano Secondo con soggiorno con angolo cottura, tre camere, due bagni e terrazzo di 12 mq. Classe energetica A3 (valore di progetto). Le immagini e la rappresentazione grafica dei prodotti (immagini, dati tecnici e descrizioni) è realizzata al solo scopo di illustrare il prodotto ed è puramente indicativa. I prodotti possono pertanto differire da quanto rappresentato.
Prevista Consegna 30/09/2027