Box 12
-

LICINIUM

ERBA (Como)

Box a Piano Interrato

€ 25.000
17.11 mq
Prevista Consegna 30/09/2027
  • 1
  • ND
Aggiungi a preferiti
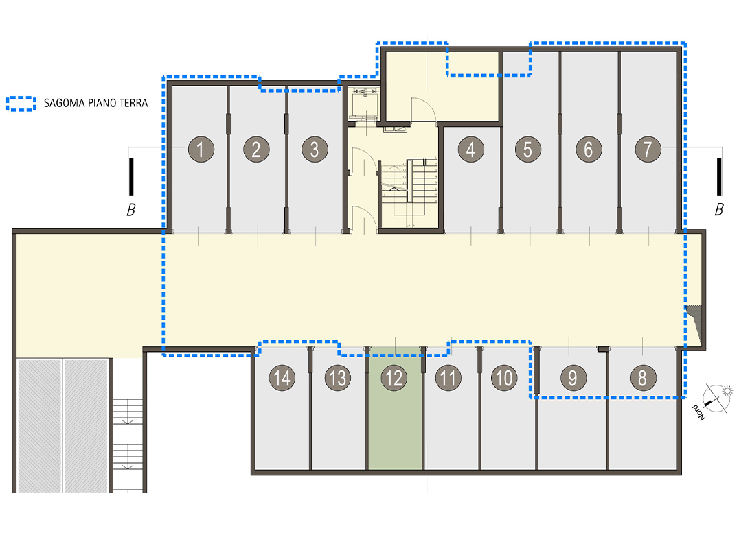
Planimetria Box Specifico
1 di 2
Planimetria Piano Interrato
2 di 2
1 di 5
2 di 5
3 di 5
4 di 5
5 di 5

contattaci







Vorrei ricevere newsletter e comunicazioni commerciali
* campi obbligatori
Se non hai una email, contattaci al numero: 031-35.27.303

LICINIUM

ERBA (Como)

Ad Erba, proponiamo un nuovo complesso residenziale in zona verdeggiante, a basso consumo energetico, sviluppato su tre piani abitabili fuori terra oltre ad un pratico piano interrato adibito a box. Immobile in classe energetica non inferiore ad A3 (valore di progetto indicativo). Disponiamo di varia gamma di tipologie di appartamenti bilocali, trilocali e quadrilocali con portico e giardino di proprietà relativi agli appartamenti piano terra e soleggiato balcone in dotazione agli appartamenti ai piani superiori.


 


In Progettazione
in vendita
1 di 7

TUTTE LE DISPONIBILITÀ IN LICINIUM

Ordina per