I PRATI CD
COLVERDE (Como)
Bilocale a Piano Terra con soggiorno con cucina a vista, una camera, un bagno, disimpegno, portico e giardino di proprietà di 125 mq. Classe energetica A3 (valore di progetto).
COLVERDE (Como)
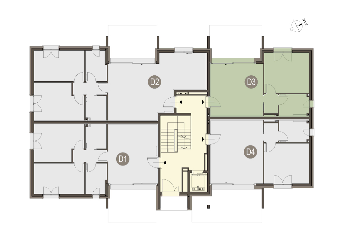
A Colverde, proponiamo edifici residenziali a basso consumo energetico ubicati in posizione di facile accesso alle principali attivita' commerciali e ai vari servizi collettivi quali, asilo nido, scuole elementari, medie e superiori, farmacie e posta. Proponiamo appartamenti di varia metratura, Bilo-Trilo e Quadrilocali con portico e giardino di proprietà per quelli al piano terra e con terrazzo per i piani
Bilocale Piano Terra con soggiorno con cucina a vista, camera, disimpegno, bagno, portico e giardino di prprietà di 84 mq. Classe energetica A3 (valore di progetto).
Prevista Consegna 31/12/2027
Bilocale Piano Terra con soggiorno con cucina a vista, camera, disimpegno, bagno, portico e giardino di prprietà di 105 mq. Classe energetica A3 (valore di progetto).
Prevista Consegna 31/12/2027
Bilocale Piano Primo con soggiorno con cucina a vista, una camera, un bagno, disimpegno e terrazzo di 18 mq. Classe energetica A3 (valore di progetto).
Prevista Consegna 31/12/2027
Bilocale a Piano Primo con soggiorno con cucina a vista, una camera, un bagno, disimpegno e terrazzo 13 mq. Classe energetica A3 (valore di progetto).
Prevista Consegna 31/12/2027
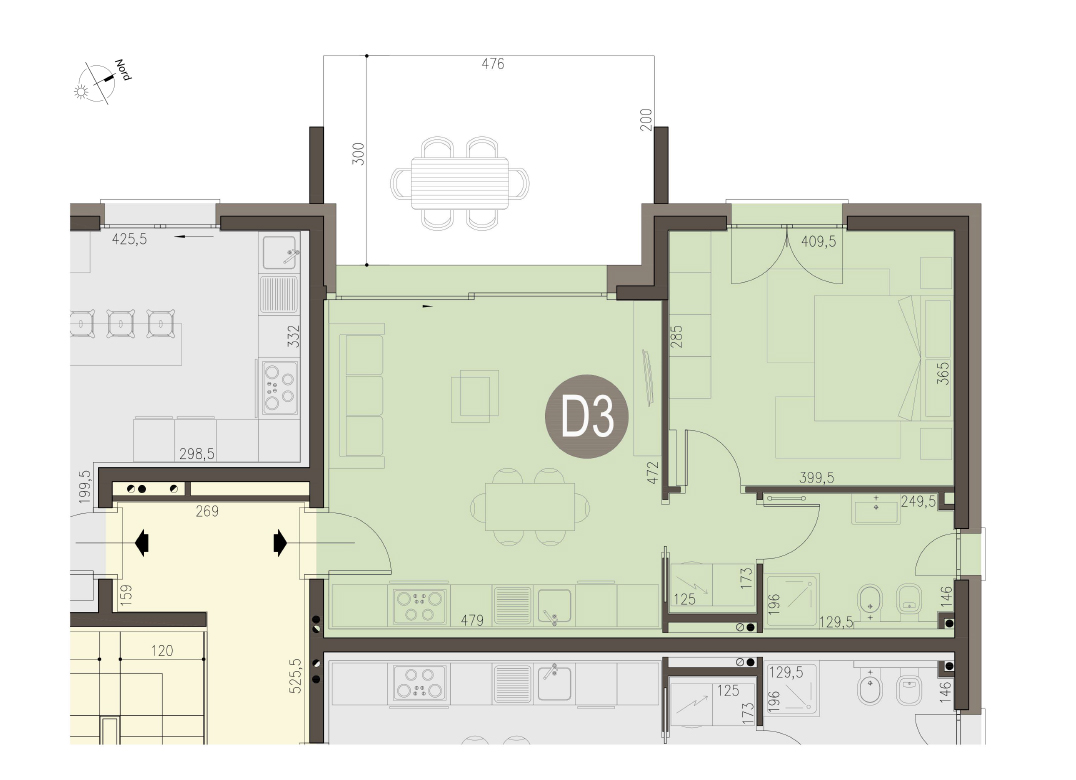
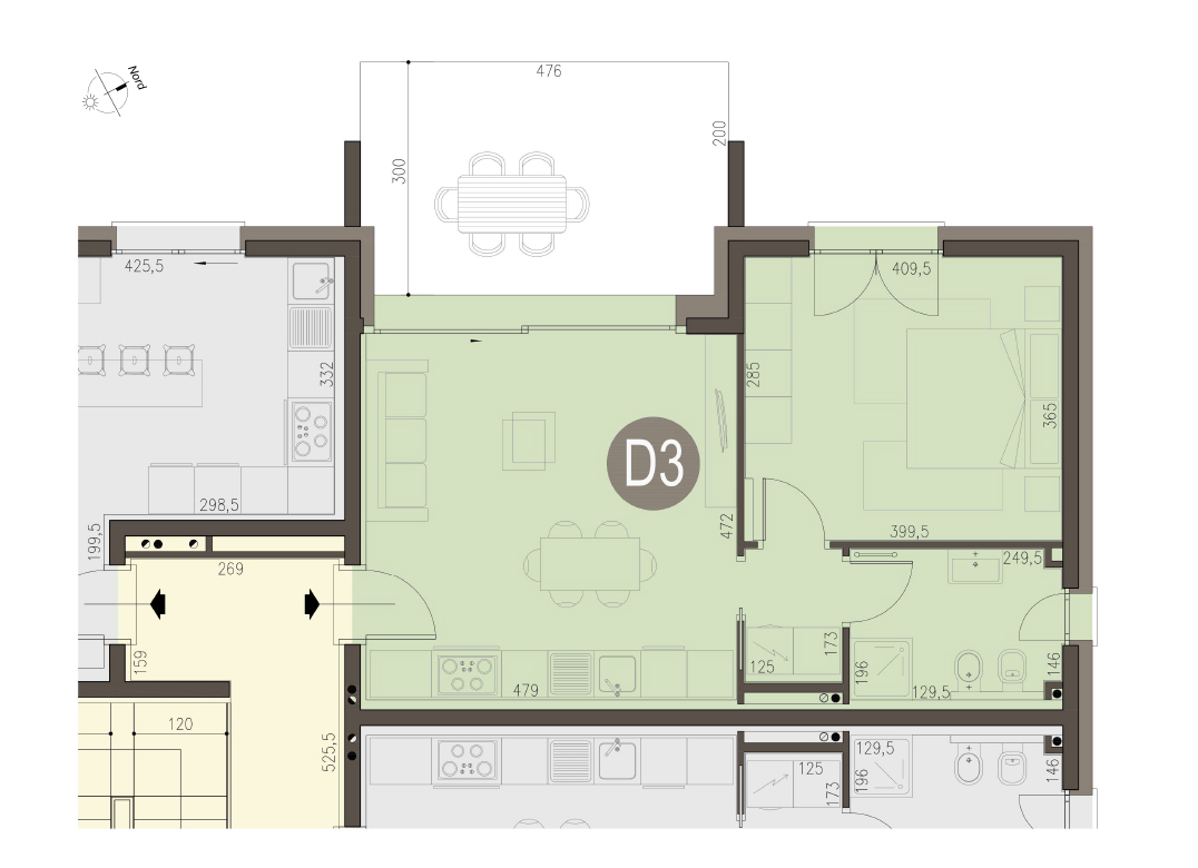
Bilocale a Piano Terra con soggiorno con cucina a vista, una camera, un bagno, disimpegno, portico e giardino di proprietà di 125 mq. Classe energetica A3 (valore di progetto).
Prevista Consegna 31/12/2027
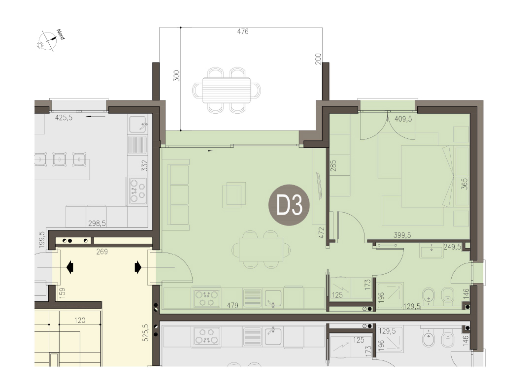
Bilocale a Piano Terra con soggiorno con cucina a vista, una camera, un bagno, disimpegno, portico e giardino di proprietà di 125 mq. Classe energetica A3 (valore di progetto).
Prevista Consegna 31/12/2027
Bilocale a Piano Primo soggiorno con cucina a vista, una camera, disimpegno, bagno e terrazzo di 14 mq. Classe energetica A3 (valore di progetto).
Prevista Consegna 31/12/2027
Trilocale Piano Primo con soggiorno con angolo cottura, due camere e due bagni, terrazzo di 12 mq. Classe energetica A3 (valore di progetto).
Prevista Consegna 31/12/2027
Trilocale a Piano Primo con soggiorno con angolo cottura, due camere, disimpegno, due bagni, portico e terrazzo di 12 mq. Classe energetica A3 (valore di progetto).
Prevista Consegna 31/12/2027
Trilocale a Piano Primo con soggiorno cucina a vista, due camere, disimpegno, un bagno, portico e terrazzo di 17 mq. Classe energetica A3 (valore di progetto).
Prevista Consegna 31/12/2027
Trilocale a Piano Terra con soggiorno con angolo cottura, due camere, due bagni, disimpegno, portico e giardino di proprietà di 275 mq. Classe energetica A3 (valore di progetto).
Prevista Consegna 31/12/2027
Trilocale a Piano Terra con soggiorno con cucina a vista, due camere, due bagni, disimpegno, portico e giardino di proprietà di 120 mq. Classe energetica A3 (valore di progetto).
Prevista Consegna 31/12/2027
Quadrilocale a Piano Primo con soggiorno cucina a vista, due bagni, disimpegno, due camere e uno studio e terrazzo di 24 mq. Classe energetica A3 (valore di progetto).
Prevista Consegna 31/12/2027
Quadrilocale a Piano Terra con soggiorno con cucina a vista, tre camere, due bagni, disimpegni, portico e giardino di proprietà di 242 mq. Classe energetica A3 (valore di progetto).
Prevista Consegna 31/12/2027