Box 1D
-

I PRATI CD

COLVERDE (Como)

Box a piano interrato

€ 39.000
32.76 mq
Prevista Consegna 30/09/2027
  • 1
  • ND
Aggiungi a preferiti
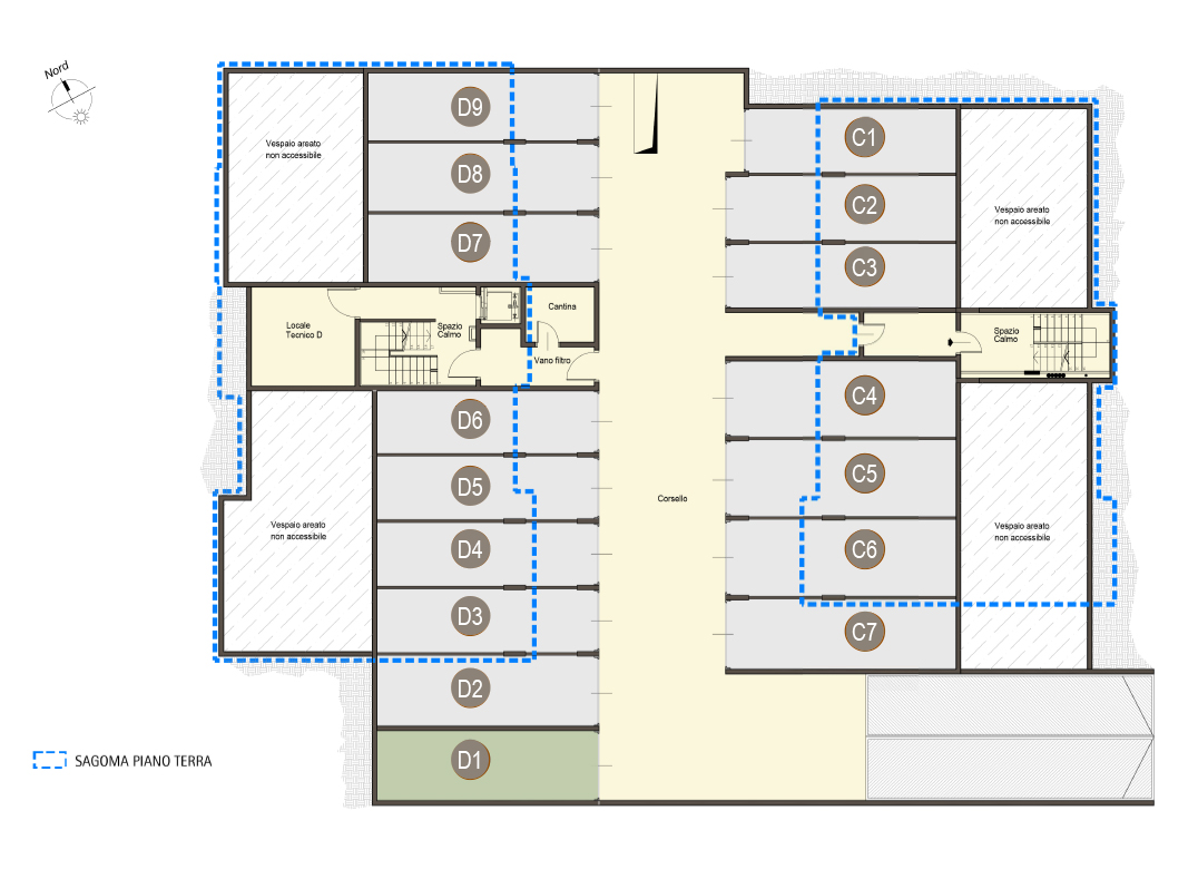
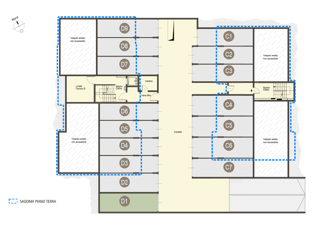
Planimetria Box Specifico
1 di 2
Planimetria Piano Interrato
2 di 2
1 di 3
2 di 3
3 di 3

contattaci







Vorrei ricevere newsletter e comunicazioni commerciali
* campi obbligatori
Se non hai una email, contattaci al numero: 031-35.27.303

I PRATI CD

COLVERDE (Como)

A Colverde, proponiamo edifici residenziali a basso consumo energetico ubicati in posizione di facile accesso alle principali attivita' commerciali e ai vari servizi collettivi quali, asilo nido, scuole elementari, medie e superiori, farmacie e posta. Proponiamo appartamenti di varia metratura, Bilo-Trilo e Quadrilocali con portico e giardino di proprietà per quelli al piano terra e con terrazzo per i piani. Le immagini e la rappresentazione grafica dei prodotti (immagini, dati tecnici e descrizioni) è realizzata al solo scopo di illustrare il prodotto ed è puramente indicativa. I prodotti possono pertanto differire da quanto rappresentato.


 


In Costruzione
in vendita
1 di 3

TUTTE LE DISPONIBILITÀ IN I PRATI CD

Ordina per