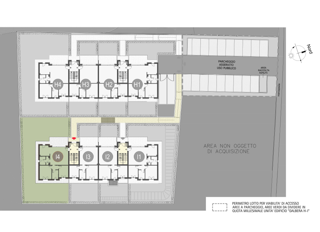
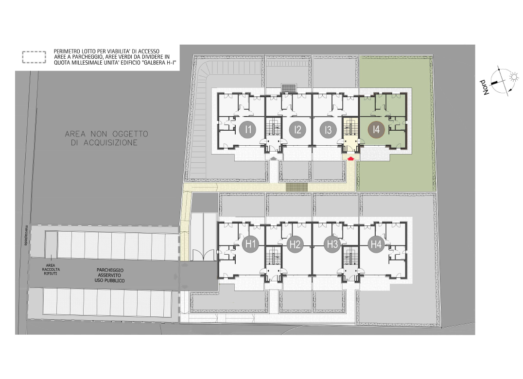
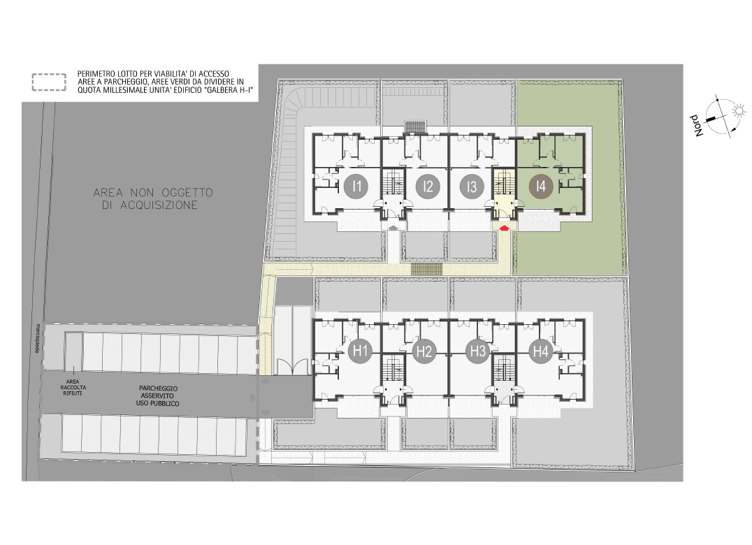
GALBERA HI
ALSERIO (Como)
Three-room apartment on the ground floor with living room, two bedrooms, two bathrooms, porch and two hallway. Garden of 284.04 sq. m. Energy class not less than A3 (indicative design value).
ALSERIO (Como)
In Alserio, we offer a new residential complex in a green area, with low energy consumption, developed on two floors above ground habitable and a practical basement used as a garage. Building in energy class not less than A3 (indicative design value). We have three-room apartments with porch and garden related to the ground floor apartments and sunny balcony provided to the apartments on the upper floors.
Three-room apartment on the ground floor composed of living room, two bedrooms, a bathroom, porch and hallway. Garden of property of sqm. 68,81 Energy class not less than A3 (indicative design value).
Expected Delivery 28/02/2027
Three-room apartment on the ground floor composed of living room,kitchen, two bedrooms, two bathrooms, porch and hallway. Garden of 110.02 sqm. Energy class not less than A3 (indicative design value).
Expected Delivery 28/02/2027
Three-room apartment on the first floor composed of living-cooking, two bedrooms, two bathrooms, two halls. Terrace of 12.54 sq. m. Energy class not less than A3 (indicative design value).
Expected Delivery 28/02/2027
Three-room apartment on the first floor composed of living-cooking, two bedrooms, a bathroom and hallway. Terrace of sqm. 12,22. Energy class not less than A3 (indicative design value).
Expected Delivery 28/02/2027
Three-room apartment on the first floor composed of living-cooking, two bedrooms, a bathroom and a hallway. Terrace of sqm. 12,22. Energy class not less than A3 (indicative design value).
Expected Delivery 28/02/2027
Three-room apartment on the first floor composed of living-kitchen, two bedrooms, two bathrooms and two halls. Terrace of 12.54 sq. m. Energy class not less than A3 (indicative design value).
Expected Delivery 28/02/2027
Three-room apartment on the ground floor with living room, two bedrooms, two bathrooms, porch and two hallway. Garden of 284.04 sq. m. Energy class not less than A3 (indicative design value).
Expected Delivery 28/02/2027
Three-room apartment on the ground floor with living room, two bedrooms, a bathroom, porch and hallway. Garden of property of mq. 80,17. Energy class not less than A3 (indicative design value).
Expected Delivery 28/02/2027
Three-room apartment on the ground floor composed of living-kitchen, two bedrooms, a bathroom, porch and hallway. Garden of 75.08 sq. meters. Energy class not less than A3 (indicative design value)
Expected Delivery 28/02/2027
Three-room apartment on the ground floor with living room, two bedrooms, two bathrooms, porch and two hallway. Garden of sqm. 227.27.Energy class not less than A3 (indicative design value).
Expected Delivery 28/02/2027
Three-room apartment on the first floor composed of living-kitchen, two bedrooms, two bathrooms and two halls. Terrace of sqm. 12.54. Energy class not less than A3 (indicative design value).
Expected Delivery 28/02/2027
Three-room apartment on the first floor composed of living room, two bedrooms, a bathroom and hallway. Terrace of sqm. 12.22. Energy class not less than A3 (indicative design value).
Expected Delivery 28/02/2027
Three-room apartment on the first floor composed of living-cooking, two bedrooms, a bathroom and a hallway. Terrace of sqm. 12,22. Energy class not less than A3 (indicative design value).
Expected Delivery 28/02/2027
Three-room apartment on the first floor composed of living-kitchen, two bedrooms, two bathrooms and two halls. Terrace of 12.54 sq. m. Energy class not less than A3 (indicative design value).
Expected Delivery 28/02/2027
Three-room apartment on the ground floor composed of living-cooking, two bedrooms, two bathrooms, porch and two hallway. Garden of mq. 261,43. Energy class not less than A3 (indicative design value).
Expected Delivery 28/02/2027
Three-room apartment on the ground floor consisting of living room, two bedrooms, a bathroom, porch and hallway. Garden of property sqm. 69,10. Energy class not less than A3 (indicative design value).
Expected Delivery 28/02/2027