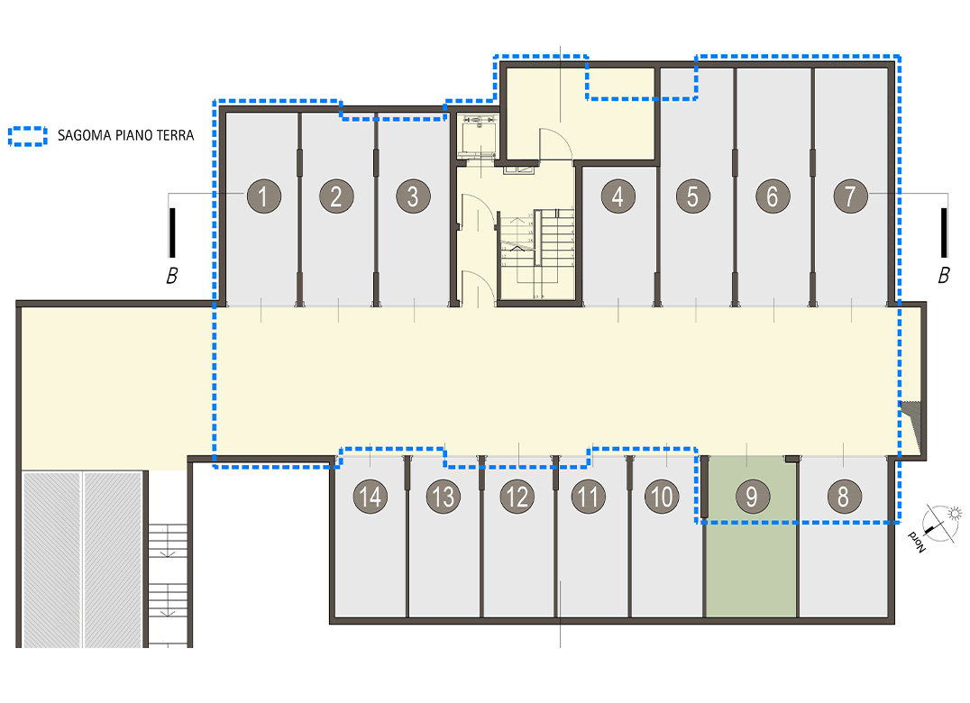
Box 9
-

LICINIUM

ERBA (Como)

Box in the basement

€ 30.000
21.57 mq
Expected Delivery 30/09/2027
  • 1
  • ND
Add to favorites
Planimetria Box Specifico
1 of 2
Planimetria Piano Interrato
2 of 2
1 of 5
2 of 5
3 of 5
4 of 5
5 of 5

Contact Us







I confirm that i have read the privacy policy *
I would like to receive newsletters and commercial communications
* compulsory fields
If you don't have an email, contact us at the number: 031-35.27.303

LICINIUM

ERBA (Como)

In Erba, we propose a new residential complex in a verdant area, with low energy consumption, developed on three floors that can be lived above ground in addition to a practical basement used as a garage. Property in energy class not less than A3 (indicative project value). We have a variety of types of two-room, three-room, and four-room apartments with a porch and garden owned by the ground-floor apartments and sunny balconies supplied to the apartments on the upper floors.


 


Under Costruction
for sale
1 of 7

ALL AVAILABILITIES IN LICINIUM

Ordina per