Opzionato

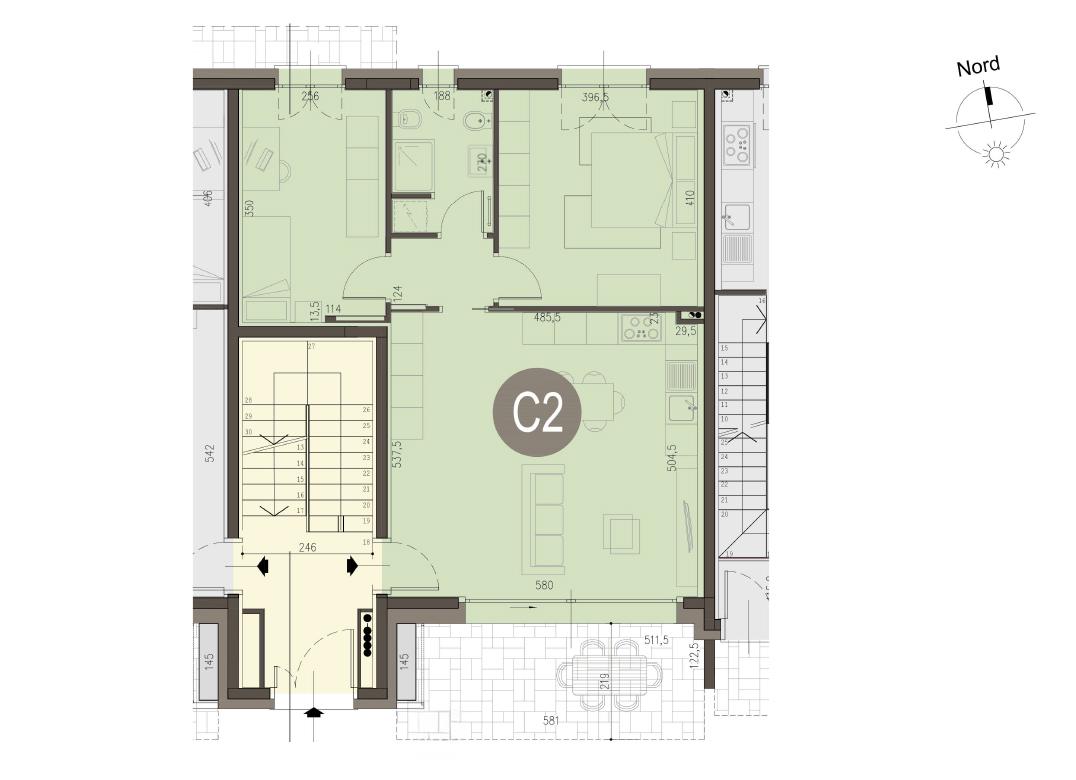
Trilocale C2
-

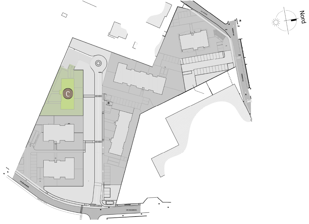
LE BRUGHIERE C

BEREGAZZO CON FIGLIARO (Como)

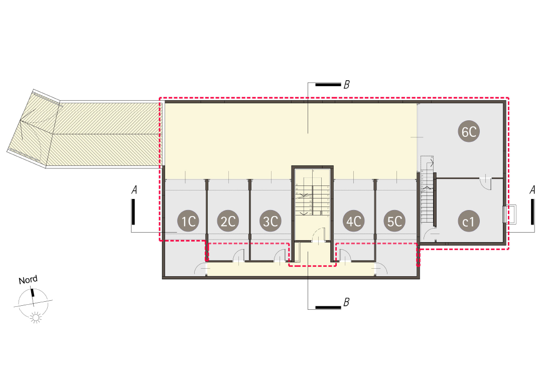
Trilocale a piano terra con soggiorno/cucina, due camere, un bagno, disimpegno, portico e giardino di proprietà di 110 mq. Classe energetica A3 (valore di progetto). Le immagini e la rappresentazione grafica dei prodotti (immagini, dati tecnici e descrizioni) è realizzata al solo scopo di illustrare il prodotto ed è puramente indicativa. I prodotti possono pertanto differire da quanto rappresentato.

€ 245.000
89.44 mq
Prevista Consegna 31/12/2026
  • 1
  • 2
  • A3
Aggiungi a preferiti
Virtual tour
Planimetria Pertinenziale
1 di 3
Planimetria Piano Terra
2 di 3
Planimetria Unità Immobiliare
3 di 3
1 di 7
2 di 7
3 di 7
4 di 7
5 di 7
6 di 7
7 di 7

contattaci







Vorrei ricevere newsletter e comunicazioni commerciali
* campi obbligatori
Se non hai una email, contattaci al numero: 031-35.27.303

LE BRUGHIERE C

BEREGAZZO CON FIGLIARO (Como)

DIRETTAMENTE DAL COSTRUTTORE SENZA MEDIAZIONE. A Beregazzo con Figliaro proponiamo un nuovo complesso residenziale in area serena e verdeggiante, non lontana dal confine svizzero e da Como, a basso consumo energetico e sviluppato su due piani abitabili fuori terra oltre ad un pratico piano interrato adibito a box. Immobile in classe energetica non inferiore ad A3 (valore di progetto indicativo). Disponiamo di trilocali e una villetta a schiera. Le immagini e la rappresentazione grafica dei prodotti (immagini, dati tecnici e descrizioni) è realizzata al solo scopo di illustrare il prodotto ed è puramente indicativa. I prodotti possono pertanto differire da quanto rappresentato.


 


In Costruzione
in vendita
1 di 3

TUTTE LE DISPONIBILITÀ IN LE BRUGHIERE C

Ordina per