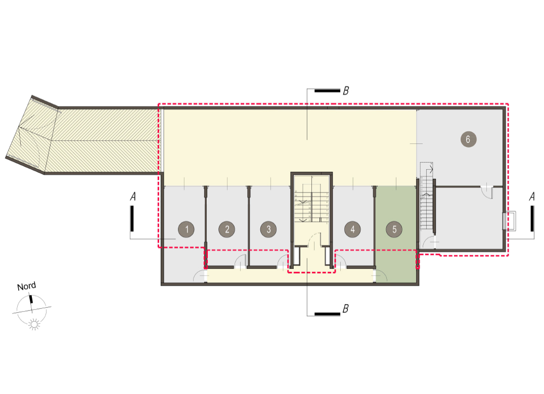
LE BRUGHIERE C
BEREGAZZO CON FIGLIARO (Como)
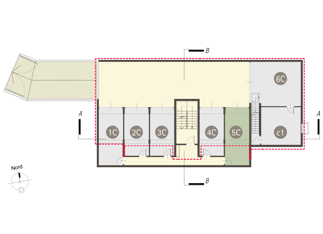
Box a piano interrato
BEREGAZZO CON FIGLIARO (Como)
DIRETTAMENTE DAL COSTRUTTORE SENZA MEDIAZIONE. A Beregazzo con Figliaro proponiamo un nuovo complesso residenziale in area serena e verdeggiante, non lontana dal confine svizzero e da Como, a basso consumo energetico e sviluppato su due piani abitabili fuori terra oltre ad un pratico piano interrato adibito a box. Immobile in classe energetica non inferiore ad A3 (valore di progetto indicativo). Disponiamo di trilocali e una villetta a schiera. Le immagini e la rappresentazione grafica dei prodotti (immagini, dati tecnici e descrizioni) è realizzata al solo scopo di illustrare il prodotto ed è puramente indicativa. I prodotti possono pertanto differire da quanto rappresentato.
Trilocale a piano terra con soggiorno,cucina abitabile, due camere, due bagni, disimpegno, portico e giardino di proprietà di 197 mq. Classe energetica A3 (valore di progetto).
Le immagini e la rappresentazione grafica dei prodotti (immagini, dati tecnici e descrizioni) è realizzata al solo scopo di illustrare il prodotto ed è puramente indicativa. I prodotti possono pertanto differire da quanto rappresentato.
Prevista Consegna 31/12/2026
Trilocale a piano terra con soggiorno/cucina, due camere, un bagno, disimpegno, portico e giardino di proprietà di 110 mq. Classe energetica A3 (valore di progetto).
Le immagini e la rappresentazione grafica dei prodotti (immagini, dati tecnici e descrizioni) è realizzata al solo scopo di illustrare il prodotto ed è puramente indicativa. I prodotti possono pertanto differire da quanto rappresentato.
Prevista Consegna 31/12/2026
Trilocale a piano primo con soggiorno,cucina abitabile, due camere, due bagni, disimpegno e terrazzo di 14 mq. Classe energetica A3 (valore di progetto).
Le immagini e la rappresentazione grafica dei prodotti (immagini, dati tecnici e descrizioni) è realizzata al solo scopo di illustrare il prodotto ed è puramente indicativa. I prodotti possono pertanto differire da quanto rappresentato.
Prevista Consegna 31/12/2026
Trilocale a piano primo con soggiorno/cucina, due camere, un bagno, disimpegno, terrazzo di 14mq. Classe energetica A3 (valore di progetto).
Le immagini e la rappresentazione grafica dei prodotti (immagini, dati tecnici e descrizioni) è realizzata al solo scopo di illustrare il prodotto ed è puramente indicativa. I prodotti possono pertanto differire da quanto rappresentato.
Prevista Consegna 31/12/2026
Quadrilocale con al piano terra soggiorno,cucina abitabile, bagno, portico e al piano primo tre camere, due bagni, disimpegno e terrazzo. Giardino di 318 mq .Classe energetica A3 (valore di progetto).
Le immagini e la rappresentazione grafica dei prodotti (immagini, dati tecnici e descrizioni) è realizzata al solo scopo di illustrare il prodotto ed è puramente indicativa. I prodotti possono pertanto differire da quanto rappresentato.
Prevista Consegna 31/12/2026