Box 1
-

LE BRUGHIERE C

BEREGAZZO CON FIGLIARO (Como)

Box a Piano Interrato

€ 35.000
23.07 mq
Prevista Consegna 31/12/2026
  • 1
  • ND
Aggiungi a preferiti
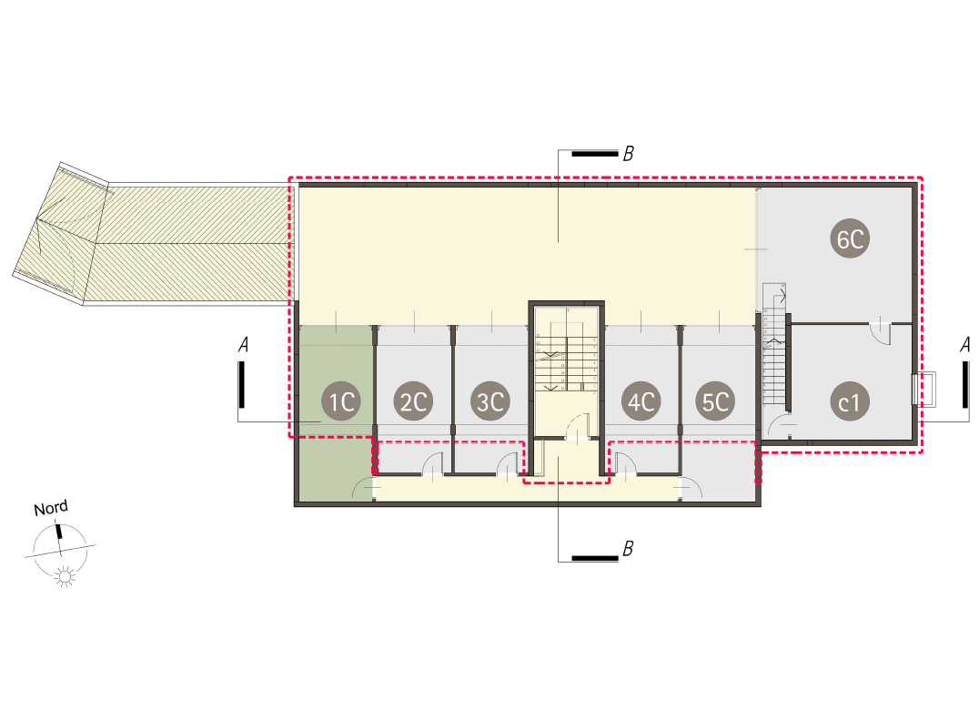
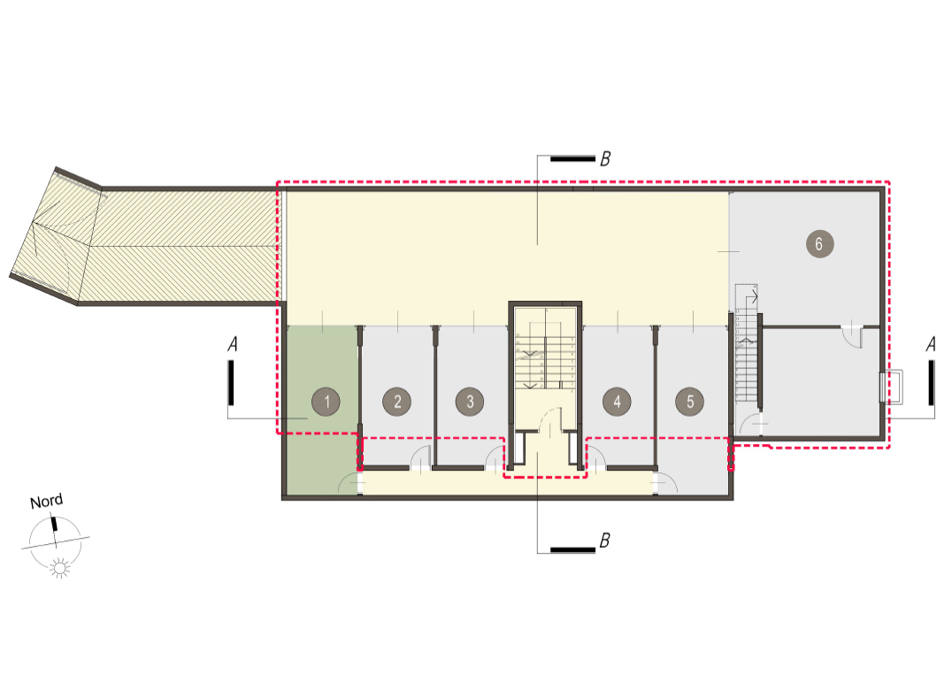
Planimetria Box Specifico
1 di 2
Planimetria Piano Interrato
2 di 2
1 di 3
2 di 3
3 di 3

contattaci







Vorrei ricevere newsletter e comunicazioni commerciali
* campi obbligatori
Se non hai una email, contattaci al numero: 031-35.27.303

LE BRUGHIERE C

BEREGAZZO CON FIGLIARO (Como)

DIRETTAMENTE DAL COSTRUTTORE SENZA MEDIAZIONE. A Beregazzo con Figliaro proponiamo un nuovo complesso residenziale in area serena e verdeggiante, non lontana dal confine svizzero e da Como, a basso consumo energetico e sviluppato su due piani abitabili fuori terra oltre ad un pratico piano interrato adibito a box. Immobile in classe energetica non inferiore ad A3 (valore di progetto indicativo). Disponiamo di trilocali e una villetta a schiera. Le immagini e la rappresentazione grafica dei prodotti (immagini, dati tecnici e descrizioni) è realizzata al solo scopo di illustrare il prodotto ed è puramente indicativa. I prodotti possono pertanto differire da quanto rappresentato.


 


In Costruzione
in vendita
1 di 3

TUTTE LE DISPONIBILITÀ IN LE BRUGHIERE C

Ordina per